(最終更新日:2025年11月17日)
ID :1846307
※お問い合わせ時にこちらのID番号をスタッフにお伝えお願い致します。
3LDK マンション 賃貸 神奈川県 川崎市中原区エクセラン新城 207










































賃料・初期費用
142,000円
管理費
5,000 円
敷金
142,000 円
礼金
142,000 円
物件情報
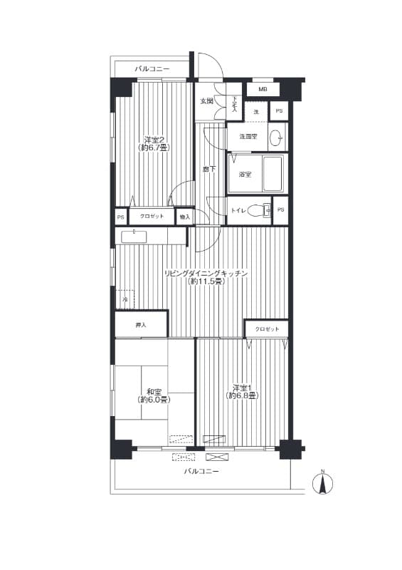
間取り
3LDK
面積
68.7㎡
築年
1996年9月
物件種別
マンション
アクセス
交通
南武線 武蔵中原 徒歩 9分
南武線 武蔵新城 徒歩 13分
住所
神奈川県 川崎市中原区 下新城1丁目5
0800-111-6663(無料)
海外から: +81-3-5155-4671
詳細情報
賃料
管理費
142,000 円
5,000 円
敷金
礼金
142,000 円
142,000 円
保証金
敷引金・償却金
- 円
- 円
間取り
3LDK
面積
68.7㎡
築年
1996年9月
階
2階 / 5階建
向き
南
物件種別
マンション
物件構造
鉄筋コンクリート造
住宅保険
要
入居可能日
ご相談
こだわり条件
2人入居可/都市ガス/風呂・トイレ別/シャワー有/コンロ2口以上/追い焚き機能有/洗濯機置き場(室内)/バルコニー/フローリング/駐輪場/光インターネット回線/角部屋/独立洗面台/クローゼット・押入れ/シューズインクローゼット/エアコン有
追記事項
-
備考
内覧予約随時受付中☆ お問い合わせは日商ベックス 代々木店へ♪ 何かお困りな事などありましたらお気軽にご相談ください☆ ご要望にぴったりなお部屋を、一緒にお探しします♪
※ 掲載情報と現状が異なる場合は現状優先といたします。
所在地
住所
神奈川県 川崎市中原区 下新城1丁目5
交通
南武線 武蔵中原 徒歩 9分
南武線 武蔵新城 徒歩 13分
備考
保証会社
加入要(保証会社名:株式会社グローバルトラストネットワークス)
保証会社利用料:初回保証料
月額総賃料の30%〜100%(最低保証料 20,000円〜)
+ 年間保証料(10,000円)もしくは月間保証料(1,000円〜)
情報提供元
株式会社グローバルトラストネットワークス 新大久保支店
取引態様:媒介
〒169-0072 東京都新宿区大久保1-15-15 AKIYAMA BLD 2階
宅地建物取引業 国土交通大臣(2)第9148号
(公社)東京都宅地建物取引業協会 会員
(公財)日本賃貸住宅管理協会 会員
(公社)首都圏不動産公正取引協議会 団体会員
(最終更新日:{date})
2025/11/17
次回更新日
2025/11/24
契約期間
-
0800-111-6663(無料)
海外から: +81-3-5155-4671
