(最終更新日:2025年12月10日)
ID :1870627
※お問い合わせ時にこちらのID番号をスタッフにお伝えお願い致します。
3LDK アパート 賃貸 大阪府 枚方市サンビレッジ桜丘 B 102号室




賃料・初期費用
80,000円
管理費
0 円
敷金
0 円
礼金
160,000 円
物件情報
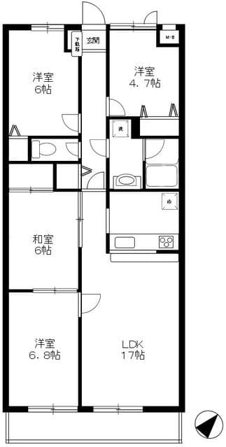
間取り
3LDK
面積
81.11㎡
築年
1992年10月
物件種別
アパート
アクセス
交通
住所
大阪府 枚方市 池之宮2丁目18-22(B102)・23(B101)
0800-111-6663(無料)
海外から: +81-3-5155-4671
詳細情報
賃料
管理費
80,000 円
0 円
敷金
礼金
0 円
160,000 円
保証金
敷引金・償却金
- 円
- 円
間取り
3LDK
面積
81.11㎡
築年
1992年10月
階
1階 / 2階建
向き
-
物件種別
アパート
物件構造
軽鉄骨造
住宅保険
要
入居可能日
ご相談
こだわり条件
2人入居可/ペット可/ペット相談/都市ガス/風呂・トイレ別/コンロ2口以上/洗濯機置き場(室内)/専用庭/フローリング/TVモニター付きインターホン/独立洗面台/シューズインクローゼット
追記事項
-
備考
-
※ 掲載情報と現状が異なる場合は現状優先といたします。
所在地
住所
大阪府 枚方市 池之宮2丁目18-22(B102)・23(B101)
交通
-
備考
保証会社
加入要(保証会社名:株式会社グローバルトラストネットワークス)
保証会社利用料:初回保証料
月額総賃料の30%〜100%(最低保証料 20,000円〜)
+ 年間保証料(10,000円)もしくは月間保証料(1,000円〜)
情報提供元
株式会社グローバルトラストネットワークス 新大久保支店
取引態様:媒介
〒169-0072 東京都新宿区大久保1-15-15 AKIYAMA BLD 2階
宅地建物取引業 国土交通大臣(2)第9148号
(公社)東京都宅地建物取引業協会 会員
(公財)日本賃貸住宅管理協会 会員
(公社)首都圏不動産公正取引協議会 団体会員
(最終更新日:{date})
2025/12/10
次回更新日
2025/12/17
契約期間
-
0800-111-6663(無料)
海外から: +81-3-5155-4671







