(最終更新日:2025年12月05日)
ID :1877654
※お問い合わせ時にこちらのID番号をスタッフにお伝えお願い致します。
2K マンション 賃貸 東京都 板橋区メインステージ浮間舟渡 0303
























賃料・初期費用
102,000円
管理費
15,000 円
敷金
0 円
礼金
102,000 円
物件情報
間取り
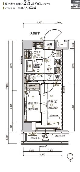
2K
面積
25.57㎡
築年
2025年10月
物件種別
マンション
アクセス
交通
埼京線 浮間舟渡 徒歩 9分
都営三田線 蓮根 徒歩 17分
住所
東京都 板橋区 舟渡3丁目10-10
0800-111-6663(無料)
海外から: +81-3-5155-4671
詳細情報
賃料
管理費
102,000 円
15,000 円
敷金
礼金
0 円
102,000 円
保証金
敷引金・償却金
0 円
- 円
間取り
2K
面積
25.57㎡
築年
2025年10月
階
3階 / 7階建
向き
北
物件種別
マンション
物件構造
鉄筋コンクリート造
住宅保険
要
入居可能日
即入居可
こだわり条件
ペット相談/都市ガス/風呂・トイレ別/洗濯機置き場(室内)/オートロック/エレベータ有/バルコニー/宅配ボックス/温水洗浄便座/24時間ゴミ出し可/防犯カメラ/インターネット使用料無料/クローゼット・押入れ/シューズインクローゼット/エアコン有
追記事項
-
備考
ネット込(シーファイブ)ペット可(敷1)保証会社必須(セゾン)引越し業者指定退去時要清掃代解約予告50日前電力業者指定有図面と現状が違う場合、現状優先とします。
※ 掲載情報と現状が異なる場合は現状優先といたします。
所在地
住所
東京都 板橋区 舟渡3丁目10-10
交通
埼京線 浮間舟渡 徒歩 9分
都営三田線 蓮根 徒歩 17分
備考
保証会社
加入要(保証会社名:株式会社グローバルトラストネットワークス)
保証会社利用料:初回保証料
月額総賃料の30%〜100%(最低保証料 20,000円〜)
+ 年間保証料(10,000円)もしくは月間保証料(1,000円〜)
情報提供元
株式会社グローバルトラストネットワークス 新大久保支店
取引態様:媒介
〒169-0072 東京都新宿区大久保1-15-15 AKIYAMA BLD 2階
宅地建物取引業 国土交通大臣(2)第9148号
(公社)東京都宅地建物取引業協会 会員
(公財)日本賃貸住宅管理協会 会員
(公社)首都圏不動産公正取引協議会 団体会員
(最終更新日:{date})
2025/12/03
次回更新日
2025/12/11
契約期間
-
0800-111-6663(無料)
海外から: +81-3-5155-4671









