(最終更新日:2026年01月08日)
ID :1919368
※お問い合わせ時にこちらのID番号をスタッフにお伝えお願い致します。
2LDK マンション 賃貸 東京都 文京区ヒューリックレジデンス駒込 1104
















































賃料・初期費用
236,000円
管理費
9,000 円
敷金
236,000 円
礼金
472,000 円
物件情報
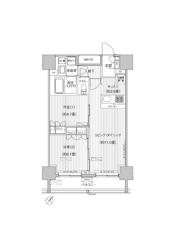
間取り
2LDK
面積
54.25㎡
築年
2012年3月
物件種別
マンション
アクセス
交通
都営三田線 千石 徒歩 2分
山手線 巣鴨 徒歩 8分
住所
東京都 文京区 本駒込6丁目1-22
0800-111-6663(無料)
海外から: +81-3-5155-4671
詳細情報
賃料
管理費
236,000 円
9,000 円
敷金
礼金
236,000 円
472,000 円
保証金
敷引金・償却金
- 円
- 円
間取り
2LDK
面積
54.25㎡
築年
2012年3月
階
11階 / 12階建
向き
南東
物件種別
マンション
物件構造
鉄筋コンクリート造
住宅保険
要
入居可能日
ご相談
こだわり条件
都市ガス/風呂・トイレ別/シャワー有/コンロ2口以上/追い焚き機能有/洗濯機置き場(室内)/オートロック/エレベータ有/バルコニー/フローリング/宅配ボックス/駐輪場/バイク置き場/光インターネット回線/TVモニター付きインターホン/温水洗浄便座/浴室乾燥機/独立洗面台/防犯カメラ/クローゼット・押入れ/シューズインクローゼット/エアコン有
追記事項
-
備考
内覧予約随時受付中☆ お問い合わせは日商ベックス代々木店へ♪ 何かお困りな事などありましたらお気軽にご相談ください☆ ご要望にぴったりなお部屋を、一緒にお探しします♪
※ 掲載情報と現状が異なる場合は現状優先といたします。
所在地
住所
東京都 文京区 本駒込6丁目1-22
交通
都営三田線 千石 徒歩 2分
山手線 巣鴨 徒歩 8分
備考
保証会社
加入要(保証会社名:株式会社グローバルトラストネットワークス)
保証会社利用料:初回保証料
月額総賃料の30%〜100%(最低保証料 20,000円〜)
+ 年間保証料(10,000円)もしくは月間保証料(1,000円〜)
情報提供元
株式会社グローバルトラストネットワークス 新大久保支店
取引態様:媒介
〒169-0072 東京都新宿区大久保1-15-15 AKIYAMA BLD 2階
宅地建物取引業 国土交通大臣(2)第9148号
(公社)東京都宅地建物取引業協会 会員
(公財)日本賃貸住宅管理協会 会員
(公社)首都圏不動産公正取引協議会 団体会員
(最終更新日:{date})
2026/01/08
次回更新日
2026/01/15
契約期間
-
0800-111-6663(無料)
海外から: +81-3-5155-4671