(最終更新日:2026年03月06日)
ID :1937775
※お問い合わせ時にこちらのID番号をスタッフにお伝えお願い致します。
1LDK アパート 賃貸 神奈川県 平塚市robot home 桃浜町 103






























賃料・初期費用
88,000円
管理費
3,000 円
敷金
0 円
礼金
88,000 円
物件情報
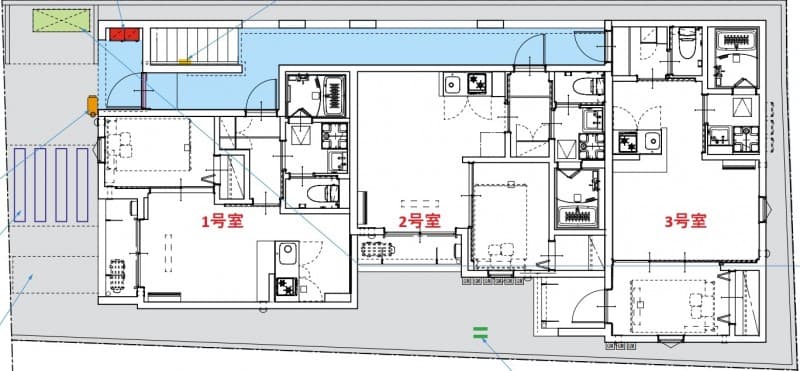
間取り
1LDK
面積
29.14㎡
築年
2026年5月
物件種別
アパート
アクセス
交通
湘南新宿ライン高海 平塚 徒歩 9分
東海道本線 平塚 徒歩 9分
住所
神奈川県 平塚市 桃浜町(以下未定)
0800-111-6663(無料)
海外から: +81-3-5155-4671
詳細情報
賃料
管理費
88,000 円
3,000 円
敷金
礼金
0 円
88,000 円
保証金
敷引金・償却金
- 円
- 円
間取り
1LDK
面積
29.14㎡
築年
2026年5月
階
1階 / 3階建
向き
西
物件種別
アパート
物件構造
木造
住宅保険
要
入居可能日
2026-6-上旬
こだわり条件
都市ガス/風呂・トイレ別/シャワー有/コンロ2口以上/洗濯機置き場(室内)/オートロック/バルコニー/フローリング/宅配ボックス/光インターネット回線/角部屋/TVモニター付きインターホン/温水洗浄便座/デザイナーズ/カウンターキッチン/浴室乾燥機/独立洗面台/防犯カメラ/インターネット使用料無料/クローゼット・押入れ/シューズインクローゼット/エアコン有
追記事項
-
その他費用
町内会費:286
入居者アプリ設定費:22000
ルムサポ:2700
備考
GTN100%(最低4万円)
※ 掲載情報と現状が異なる場合は現状優先といたします。
所在地
住所
神奈川県 平塚市 桃浜町(以下未定)
交通
湘南新宿ライン高海 平塚 徒歩 9分
東海道本線 平塚 徒歩 9分
備考
保証会社
加入要(保証会社名:株式会社グローバルトラストネットワークス)
保証会社利用料:初回保証料
月額総賃料の30%〜100%(最低保証料 20,000円〜)
+ 年間保証料(10,000円)もしくは月間保証料(1,000円〜)
情報提供元
株式会社グローバルトラストネットワークス 新大久保支店
取引態様:媒介
〒169-0072 東京都新宿区大久保1-15-15 AKIYAMA BLD 2階
宅地建物取引業 国土交通大臣(2)第9148号
(公社)東京都宅地建物取引業協会 会員
(公財)日本賃貸住宅管理協会 会員
(公社)首都圏不動産公正取引協議会 団体会員
(最終更新日:{date})
2026/03/06
次回更新日
2026/03/13
契約期間
-
0800-111-6663(無料)
海外から: +81-3-5155-4671







