(最終更新日:2026年02月22日)
ID :1940488
※お問い合わせ時にこちらのID番号をスタッフにお伝えお願い致します。
1K マンション 賃貸 愛知県 名古屋市中川区CREST TAPP金山 1301










































賃料・初期費用
68,200円
管理費
20,000 円
敷金
0 円
礼金
0 円
物件情報
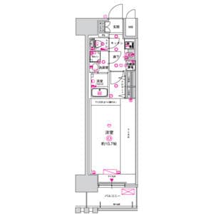
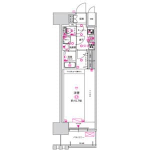
間取り
1K
面積
29.97㎡
築年
2025年8月
物件種別
マンション
アクセス
交通
名古屋市営名城線 金山 徒歩 9分
東海道本線 金山 徒歩 9分
住所
愛知県 名古屋市中川区 愛知県名古屋市中川区八熊1丁目5-10
0800-111-6663(無料)
海外から: +81-3-5155-4671
詳細情報
賃料
管理費
68,200 円
20,000 円
敷金
礼金
0 円
0 円
保証金
敷引金・償却金
0 円
- 円
間取り
1K
面積
29.97㎡
築年
2025年8月
階
13階 / 15階建
向き
南
物件種別
マンション
物件構造
鉄筋コンクリート造
住宅保険
要
入居可能日
即入居可
こだわり条件
ペット相談/都市ガス/風呂・トイレ別/コンロ2口以上/洗濯機置き場有/オートロック/エレベータ有/バルコニー/宅配ボックス/角部屋/TVモニター付きインターホン/温水洗浄便座/浴室乾燥機/防犯カメラ/インターネット使用料無料/エアコン有
追記事項
-
その他費用
契約事務手数料(契約時):11000
更新事務手数料(更新時):11000
エアコンクリーニング(退去時):16500
備考
ペット飼育時、1匹につき敷金1ヶ月(小型犬・猫 合計2匹まで) ★キャンペーン★ 当月分日割り・翌月分の家賃+管理費無料!!(24H駆けつけサービスは対象外) 駐輪場・駐車場等の空き確認や金額については「募集図面」から建物管理会社様へご連絡お願いいたします。 ※内覧は103.206.307.505.702.901.1104.1503号室でお願いします ※室内写真は同タイプの別部屋です
※ 掲載情報と現状が異なる場合は現状優先といたします。
所在地
住所
愛知県 名古屋市中川区 愛知県名古屋市中川区八熊1丁目5-10
交通
名古屋市営名城線 金山 徒歩 9分
東海道本線 金山 徒歩 9分
備考
保証会社
加入要(保証会社名:株式会社グローバルトラストネットワークス)
保証会社利用料:初回保証料
月額総賃料の30%〜100%(最低保証料 20,000円〜)
+ 年間保証料(10,000円)もしくは月間保証料(1,000円〜)
情報提供元
株式会社グローバルトラストネットワークス 新大久保支店
取引態様:媒介
〒169-0072 東京都新宿区大久保1-15-15 AKIYAMA BLD 2階
宅地建物取引業 国土交通大臣(2)第9148号
(公社)東京都宅地建物取引業協会 会員
(公財)日本賃貸住宅管理協会 会員
(公社)首都圏不動産公正取引協議会 団体会員
(最終更新日:{date})
2026/02/21
次回更新日
2026/02/28
契約期間
-
0800-111-6663(無料)
海外から: +81-3-5155-4671









