(最終更新日:2026年01月30日)
ID :1954788
※お問い合わせ時にこちらのID番号をスタッフにお伝えお願い致します。
1LDK アパート 賃貸 兵庫県 尼崎市Casa Brillar 103






























賃料・初期費用
64,000円
管理費
4,000 円
敷金
0 円
礼金
0 円
物件情報
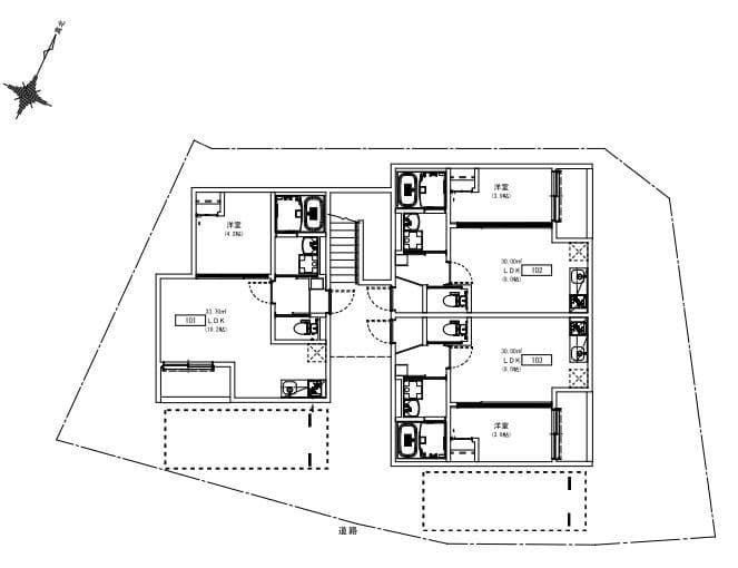
間取り
1LDK
面積
30㎡
築年
2018年4月
物件種別
アパート
アクセス
交通
阪神本線 武庫川 徒歩 10分
阪神本線 尼崎センタープール前 徒歩 16分
住所
兵庫県 尼崎市 大庄西町3丁目11番24号
0800-111-6663(無料)
海外から: +81-3-5155-4671
詳細情報
賃料
管理費
64,000 円
4,000 円
敷金
礼金
0 円
0 円
保証金
敷引金・償却金
- 円
- 円
間取り
1LDK
面積
30㎡
築年
2018年4月
階
1階 / 3階建
向き
北東
物件種別
アパート
物件構造
木造
住宅保険
要
入居可能日
2026-3-下旬
こだわり条件
2人入居可/プロパンガス/風呂・トイレ別/シャワー有/コンロ2口以上/追い焚き機能有/洗濯機置き場(室内)/バルコニー/フローリング/光インターネット回線/角部屋/TVモニター付きインターホン/温水洗浄便座/デザイナーズ/浴室乾燥機/独立洗面台/インターネット使用料無料/クローゼット・押入れ/シューズインクローゼット/エアコン有
追記事項
-
備考
-
※ 掲載情報と現状が異なる場合は現状優先といたします。
所在地
住所
兵庫県 尼崎市 大庄西町3丁目11番24号
交通
阪神本線 武庫川 徒歩 10分
阪神本線 尼崎センタープール前 徒歩 16分
備考
保証会社
加入要(保証会社名:株式会社グローバルトラストネットワークス)
保証会社利用料:初回保証料
月額総賃料の30%〜100%(最低保証料 20,000円〜)
+ 年間保証料(10,000円)もしくは月間保証料(1,000円〜)
情報提供元
株式会社グローバルトラストネットワークス 新大久保支店
取引態様:媒介
〒169-0072 東京都新宿区大久保1-15-15 AKIYAMA BLD 2階
宅地建物取引業 国土交通大臣(2)第9148号
(公社)東京都宅地建物取引業協会 会員
(公財)日本賃貸住宅管理協会 会員
(公社)首都圏不動産公正取引協議会 団体会員
(最終更新日:{date})
2026/01/30
次回更新日
2026/02/06
契約期間
-
0800-111-6663(無料)
海外から: +81-3-5155-4671