(最終更新日:2026年03月01日)
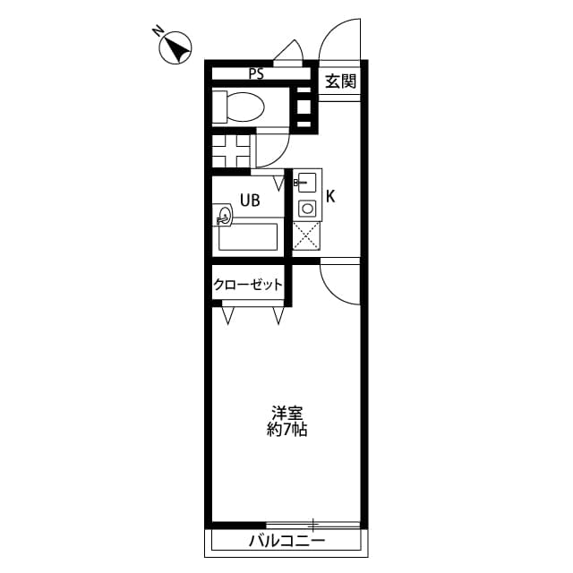
バストイレ別・室内洗濯機置場・洋室約7帖・南西向き住戸
ID :2004756
※お問い合わせ時にこちらのID番号をスタッフにお伝えお願い致します。
1K アパート 賃貸 神奈川県 横浜市港南区アムールSAIDO 103
































賃料・初期費用
55,000円
管理費
3,000 円
敷金
- 円
礼金
27,500 円
物件情報
間取り
1K
面積
22.35㎡
築年
2006年3月
物件種別
アパート
アクセス
交通
京急本線 上大岡 徒歩 9分
横浜市営ブルーライン 上大岡 徒歩 9分
横浜市営ブルーライン 港南中央 徒歩 9分
住所
神奈川県 横浜市港南区 最戸2-16-18
0800-111-6663(無料)
海外から: +81-3-5155-4671
詳細情報
賃料
管理費
55,000 円
3,000 円
敷金
礼金
- 円
27,500 円
保証金
敷引金・償却金
- 円
- 円
間取り
1K
面積
22.35㎡
築年
2006年3月
階
1階 / 2階建
向き
南西
物件種別
アパート
物件構造
木造
住宅保険
不要
入居可能日
2026-4
こだわり条件
プロパンガス/風呂・トイレ別/洗濯機置き場(室内)/バルコニー/フローリング/宅配ボックス/光インターネット回線/TVモニター付きインターホン/浴室乾燥機/エアコン有
追記事項
-
その他費用
-
備考
★上大岡駅まで徒歩約9分★初回定額ルームクリーニング代無し★
※ 掲載情報と現状が異なる場合は現状優先といたします。
住所
神奈川県 横浜市港南区 最戸2-16-18
交通
京急本線 上大岡 徒歩 9分
横浜市営ブルーライン 上大岡 徒歩 9分
横浜市営ブルーライン 港南中央 徒歩 9分
備考
保証会社
加入要(保証会社名:株式会社グローバルトラストネットワークス)
保証会社利用料:初回保証料
月額総賃料の30%〜100%(最低保証料 20,000円〜)
+ 年間保証料(10,000円)もしくは月間保証料(1,000円〜)
情報提供元
株式会社グローバルトラストネットワークス 新大久保支店
取引態様:媒介
〒169-0072 東京都新宿区大久保1-15-15 AKIYAMA BLD 2階
宅地建物取引業 国土交通大臣(2)第9148号
(公社)東京都宅地建物取引業協会 会員
(公財)日本賃貸住宅管理協会 会員
(公社)首都圏不動産公正取引協議会 団体会員
(最終更新日:{date})
2026/02/28
次回更新日
2026/03/08
契約期間
-
0800-111-6663(無料)
海外から: +81-3-5155-4671


