(最終更新日:2026年04月07日)
ID :2051215
※お問い合わせ時にこちらのID番号をスタッフにお伝えお願い致します。
1LDK アパート 賃貸 兵庫県 神戸市垂水区KOKORO 302






















賃料・初期費用
66,000円
管理費
4,000 円
敷金
0 円
礼金
0 円
物件情報
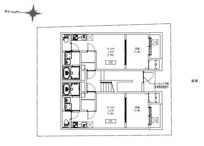
間取り
1LDK
面積
34.19㎡
築年
2018年11月
物件種別
アパート
アクセス
交通
山陽電鉄本線 東垂水 徒歩5分
住所
兵庫県 神戸市垂水区 泉が丘2丁目1-5
0800-111-6663(無料)
海外から: +81-3-5155-4671
詳細情報
賃料
管理費
66,000 円
4,000 円
敷金
礼金
0 円
0 円
保証金
敷引金・償却金
- 円
- 円
間取り
1LDK
面積
34.19㎡
築年
2018年11月
階
3階 / 3階建
向き
南
物件種別
アパート
物件構造
木造
住宅保険
要
入居可能日
2026-5-下旬
こだわり条件
プロパンガス/風呂・トイレ別/シャワー有/コンロ2口以上/追い焚き機能有/洗濯機置き場(室内)/オートロック/バルコニー/フローリング/光インターネット回線/角部屋/TVモニター付きインターホン/温水洗浄便座/デザイナーズ/浴室乾燥機/インターネット使用料無料/クローゼット・押入れ/シューズインクローゼット/エアコン有
追記事項
-
その他費用
町内会費:220
入居者アプリ設定費:22000
ルムサポ:2700
備考
-
※ 掲載情報と現状が異なる場合は現状優先といたします。
所在地
住所
兵庫県 神戸市垂水区 泉が丘2丁目1-5
交通
山陽電鉄本線 東垂水 徒歩 5分
備考
保証会社
加入要(保証会社名:株式会社グローバルトラストネットワークス)
保証会社利用料:初回保証料
月額総賃料の30%〜100%(最低保証料 20,000円〜)
+ 年間保証料(10,000円)もしくは月間保証料(1,000円〜)
情報提供元
株式会社グローバルトラストネットワークス 新大久保支店
取引態様:媒介
〒169-0072 東京都新宿区大久保1-15-15 AKIYAMA BLD 2階
宅地建物取引業 国土交通大臣(2)第9148号
(公社)東京都宅地建物取引業協会 会員
(公財)日本賃貸住宅管理協会 会員
(公社)首都圏不動産公正取引協議会 団体会員
最終更新日
2026/04/07
次回更新日
2026/04/14
契約期間
-
0800-111-6663(無料)
海外から: +81-3-5155-4671
