(最終更新日:2026年02月25日)
ID :989115
※お問い合わせ時にこちらのID番号をスタッフにお伝えお願い致します。
0その他 その他 賃貸 石川県 金沢市CoCoTTo KANAZAWA 207






賃料・初期費用
268,400円
管理費
0 円
敷金
1,610,400 円
礼金
0 円
物件情報
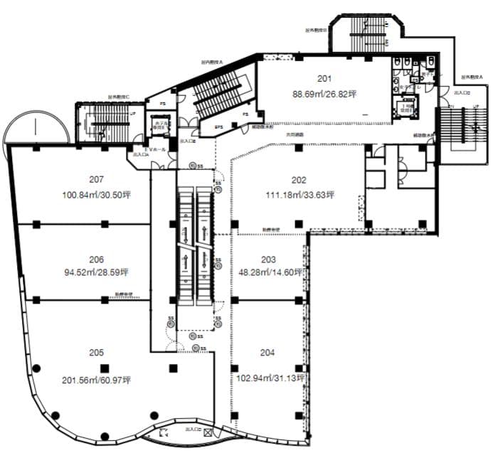
間取り
その他
面積
100.84㎡
築年
2007年3月
物件種別
その他
アクセス
交通
北陸鉄道石川線 野町 徒歩 17分
JR北陸本線 金沢 徒歩 31分
住所
石川県 金沢市 竪町45-2
0800-111-6663(無料)
海外から: +81-3-5155-4671
詳細情報
賃料
管理費
268,400 円
0 円
敷金
礼金
1,610,400 円
0 円
保証金
敷引金・償却金
- 円
- 円
間取り
その他
面積
100.84㎡
築年
2007年3月
階
2階 / 5階建
向き
-
物件種別
その他
物件構造
重鉄骨造
住宅保険
要
入居可能日
ご相談
こだわり条件
-
追記事項
-
その他費用
テナントサイン費用:
備考
固定水道料3355円(月額)
※ 掲載情報と現状が異なる場合は現状優先といたします。
所在地
住所
石川県 金沢市 竪町45-2
交通
北陸鉄道石川線 野町 徒歩 17分
JR北陸本線 金沢 徒歩 31分
備考
保証会社
加入要(保証会社名:株式会社グローバルトラストネットワークス)
保証会社利用料:初回保証料
月額総賃料の30%〜100%(最低保証料 20,000円〜)
+ 年間保証料(10,000円)もしくは月間保証料(1,000円〜)
情報提供元
株式会社グローバルトラストネットワークス 新大久保支店
取引態様:媒介
〒169-0072 東京都新宿区大久保1-15-15 AKIYAMA BLD 2階
宅地建物取引業 国土交通大臣(2)第9148号
(公社)東京都宅地建物取引業協会 会員
(公財)日本賃貸住宅管理協会 会員
(公社)首都圏不動産公正取引協議会 団体会員
(最終更新日:{date})
2026/02/21
次回更新日
2026/03/01
契約期間
-
0800-111-6663(無料)
海外から: +81-3-5155-4671