(最終更新日:2026年02月24日)
ID :1175016
※お問い合わせ時にこちらのID番号をスタッフにお伝えお願い致します。
0その他 その他 賃貸 東京都 新宿区S&Sビルディング 302










賃料・初期費用
1,050,390円
管理費
0 円
敷金
10,503,900 円
礼金
0 円
物件情報
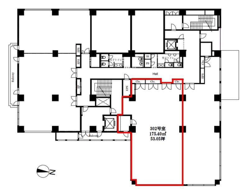
間取り
その他
面積
175.4㎡
築年
1994年3月
物件種別
その他
アクセス
交通
総武線 飯田橋 徒歩 8分
南北線 飯田橋 徒歩 8分
住所
東京都 新宿区 新小川町6-36
0800-111-6663(無料)
海外から: +81-3-5155-4671
詳細情報
賃料
管理費
1,050,390 円
0 円
敷金
礼金
10,503,900 円
0 円
保証金
敷引金・償却金
- 円
- 円
間取り
その他
面積
175.4㎡
築年
1994年3月
階
3階 / 14階建
向き
-
物件種別
その他
物件構造
鉄骨鉄筋コンクリート造
住宅保険
要
入居可能日
2025-1
こだわり条件
エレベータ有
追記事項
-
その他費用
-
備考
-
※ 掲載情報と現状が異なる場合は現状優先といたします。
所在地
住所
東京都 新宿区 新小川町6-36
交通
総武線 飯田橋 徒歩 8分
南北線 飯田橋 徒歩 8分
備考
保証会社
加入要(保証会社名:株式会社グローバルトラストネットワークス)
保証会社利用料:初回保証料
月額総賃料の30%〜100%(最低保証料 20,000円〜)
+ 年間保証料(10,000円)もしくは月間保証料(1,000円〜)
情報提供元
株式会社グローバルトラストネットワークス 新大久保支店
取引態様:媒介
〒169-0072 東京都新宿区大久保1-15-15 AKIYAMA BLD 2階
宅地建物取引業 国土交通大臣(2)第9148号
(公社)東京都宅地建物取引業協会 会員
(公財)日本賃貸住宅管理協会 会員
(公社)首都圏不動産公正取引協議会 団体会員
(最終更新日:{date})
2026/02/21
次回更新日
2026/03/01
契約期間
-
0800-111-6663(無料)
海外から: +81-3-5155-4671