(最終更新日:2026年02月25日)
ペットと暮らす土間のある家 リノベーション戸建て
ID :1711896
※お問い合わせ時にこちらのID番号をスタッフにお伝えお願い致します。
3LDK 一戸建 賃貸 千葉県 流山市ペットと暮らす土間のある家 流山戸建 1








































賃料・初期費用
115,000円
管理費
7,000 円
敷金
0 円
礼金
115,000 円
物件情報
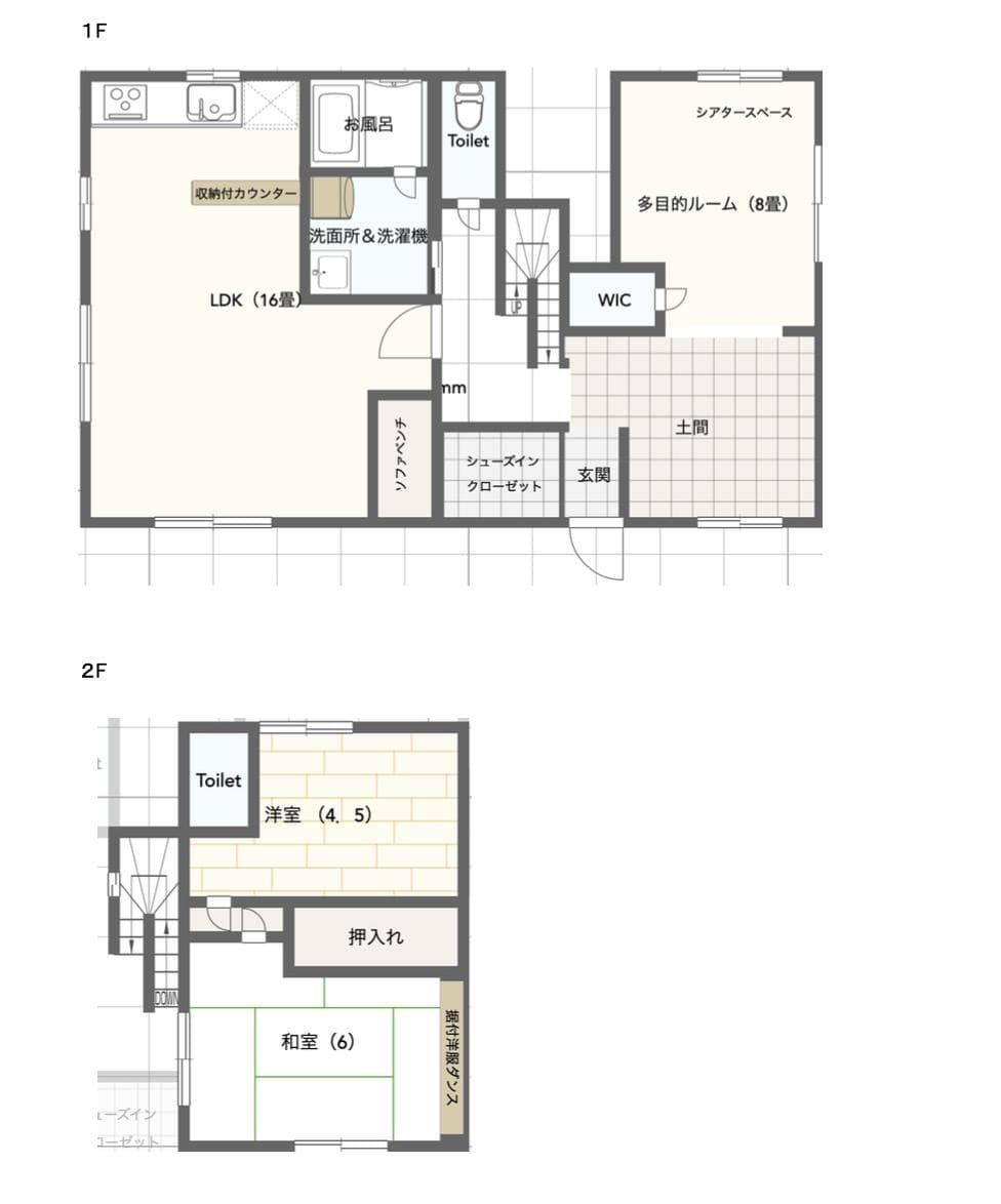
間取り
3LDK
面積
94.5㎡
築年
1975年3月
物件種別
一戸建
アクセス
交通
東武野田線 運河 徒歩 9分
東武野田線 梅郷 徒歩 25分
住所
千葉県 流山市 大字西深井860-8
0800-111-6663(無料)
海外から: +81-3-5155-4671
詳細情報
賃料
管理費
115,000 円
7,000 円
敷金
礼金
0 円
115,000 円
保証金
敷引金・償却金
- 円
- 円
間取り
3LDK
面積
94.5㎡
築年
1975年3月
階
1階 / 2階建
向き
南
物件種別
一戸建
物件構造
木造
住宅保険
要
入居可能日
即入居可
こだわり条件
事務所可/2人入居可/ペット可/プロパンガス/風呂・トイレ別/コンロ2口以上/追い焚き機能有/ウォークインクローゼット/洗濯機置き場(室内)/専用庭/駐輪場/バイク置き場/光インターネット回線/TVモニター付きインターホン/温水洗浄便座/デザイナーズ/独立洗面台/クローゼット・押入れ/シューズインクローゼット/エアコン有
追記事項
-
その他費用
24時間緊急サービス(2年間):16500
法人契約の場合:115000
ペット飼育時:115000
備考
ペット飼育時(2頭目以降1頭毎)(月額)5000円(月額) 短期解約違約金あり。
※ 掲載情報と現状が異なる場合は現状優先といたします。
所在地
住所
千葉県 流山市 大字西深井860-8
交通
東武野田線 運河 徒歩 9分
東武野田線 梅郷 徒歩 25分
備考
保証会社
加入要(保証会社名:株式会社グローバルトラストネットワークス)
保証会社利用料:初回保証料
月額総賃料の30%〜100%(最低保証料 20,000円〜)
+ 年間保証料(10,000円)もしくは月間保証料(1,000円〜)
情報提供元
株式会社グローバルトラストネットワークス 新大久保支店
取引態様:媒介
〒169-0072 東京都新宿区大久保1-15-15 AKIYAMA BLD 2階
宅地建物取引業 国土交通大臣(2)第9148号
(公社)東京都宅地建物取引業協会 会員
(公財)日本賃貸住宅管理協会 会員
(公社)首都圏不動産公正取引協議会 団体会員
(最終更新日:{date})
2026/02/24
次回更新日
2026/03/10
契約期間
-
0800-111-6663(無料)
海外から: +81-3-5155-4671