(最終更新日:2025年12月14日)
ID :1721497
※お問い合わせ時にこちらのID番号をスタッフにお伝えお願い致します。
1K マンション 賃貸 兵庫県 神戸市東灘区ファーストフィオーレ東灘 0804












賃料・初期費用
67,400円
管理費
10,000 円
敷金
- 円
礼金
- 円
物件情報
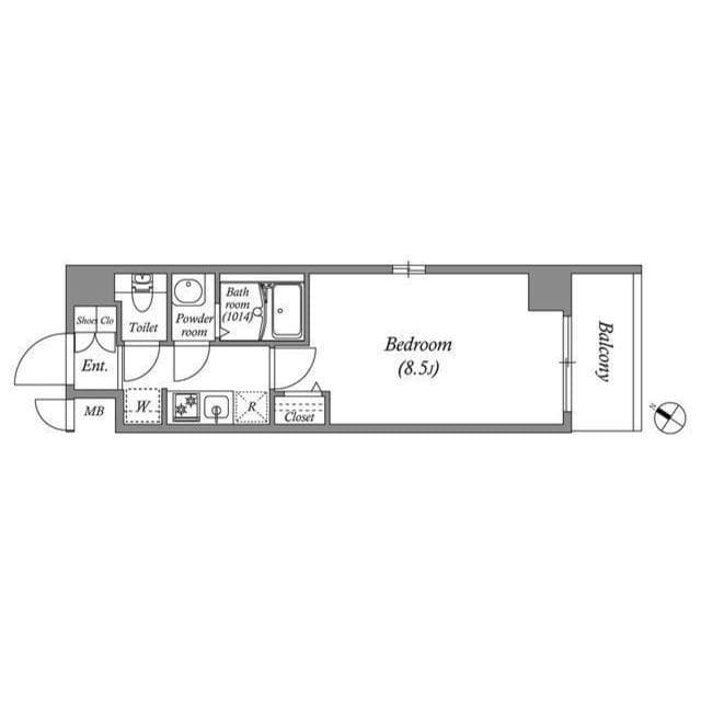
間取り
1K
面積
25.52㎡
築年
2025年9月
物件種別
マンション
アクセス
交通
阪神本線 青木 徒歩 5分
阪神本線 深江 徒歩 14分
住所
兵庫県 神戸市東灘区 青木2丁目14番20
0800-111-6663(無料)
海外から: +81-3-5155-4671
詳細情報
賃料
管理費
67,400 円
10,000 円
敷金
礼金
- 円
- 円
保証金
敷引金・償却金
- 円
- 円
間取り
1K
面積
25.52㎡
築年
2025年9月
階
8階 / 10階建
向き
南
物件種別
マンション
物件構造
鉄筋コンクリート造
住宅保険
要
入居可能日
即入居可
こだわり条件
都市ガス/風呂・トイレ別/シャワー有/コンロ2口以上/システムキッチン/洗濯機置き場(室内)/CS/BS/オートロック/エレベータ有/バルコニー/フローリング/宅配ボックス/TVモニター付きインターホン/温水洗浄便座/独立洗面台/防犯カメラ/クローゼット・押入れ/シューズインクローゼット/エアコン有
追記事項
-
備考
■解約予告2ヶ月前(日割)■1年未満解約「家+共」の2ヶ月分■入居者アプリ必須■スマサポコンシェル加入必須(法人契約は除く)■共用部管理会社:株式会社ファーストステージデベロップメント(10〜17時)06-7176-3333■保証会社sumai保証 ほっと保証(初回保証料:100%※最低保証料4万円、月額保証料:税別800円、年間保証料2万円)■入居時鍵交換代新築時不要★カラーバリエーション有
※ 掲載情報と現状が異なる場合は現状優先といたします。
所在地
住所
兵庫県 神戸市東灘区 青木2丁目14番20
交通
阪神本線 青木 徒歩 5分
阪神本線 深江 徒歩 14分
備考
保証会社
加入要(保証会社名:株式会社グローバルトラストネットワークス)
保証会社利用料:初回保証料
月額総賃料の30%〜100%(最低保証料 20,000円〜)
+ 年間保証料(10,000円)もしくは月間保証料(1,000円〜)
情報提供元
株式会社グローバルトラストネットワークス 新大久保支店
取引態様:媒介
〒169-0072 東京都新宿区大久保1-15-15 AKIYAMA BLD 2階
宅地建物取引業 国土交通大臣(2)第9148号
(公社)東京都宅地建物取引業協会 会員
(公財)日本賃貸住宅管理協会 会員
(公社)首都圏不動産公正取引協議会 団体会員
(最終更新日:{date})
2025/12/11
次回更新日
2025/12/19
契約期間
-
0800-111-6663(無料)
海外から: +81-3-5155-4671









