(最終更新日:2025年10月05日)
ID :1770106
※お問い合わせ時にこちらのID番号をスタッフにお伝えお願い致します。
3LDK マンション 賃貸 大阪府 吹田市IDCヴィルヌーブ緑地公園ノースヒル 907










賃料・初期費用
130,000円
管理費
10,000 円
敷金
150,000 円
礼金
300,000 円
物件情報
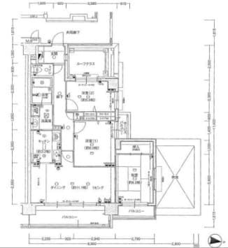
間取り
3LDK
面積
70.96㎡
築年
1998年1月
物件種別
マンション
アクセス
交通
北大阪急行電鉄 桃山台 徒歩 13分
住所
大阪府 吹田市 春日4丁目5-1
0800-111-6663(無料)
海外から: +81-3-5155-4671
詳細情報
賃料
管理費
130,000 円
10,000 円
敷金
礼金
150,000 円
300,000 円
保証金
敷引金・償却金
- 円
- 円
間取り
3LDK
面積
70.96㎡
築年
1998年1月
階
9階 / 9階建
向き
西
物件種別
マンション
物件構造
鉄骨鉄筋コンクリート造
住宅保険
要
入居可能日
2025-10-下旬
こだわり条件
都市ガス/風呂・トイレ別/シャワー有/コンロ2口以上/洗濯機置き場(室内)/オートロック/エレベータ有/バルコニー/フローリング/宅配ボックス/角部屋/TVモニター付きインターホン/独立洗面台/クローゼット・押入れ/シューズインクローゼット/エアコン有
追記事項
-
備考
-
※ 掲載情報と現状が異なる場合は現状優先といたします。
所在地
住所
大阪府 吹田市 春日4丁目5-1
交通
北大阪急行電鉄 桃山台 徒歩 13分
備考
保証会社
加入要(保証会社名:株式会社グローバルトラストネットワークス)
保証会社利用料:初回保証料
月額総賃料の30%〜100%(最低保証料 20,000円〜)
+ 年間保証料(10,000円)もしくは月間保証料(1,000円〜)
情報提供元
株式会社グローバルトラストネットワークス 新大久保支店
取引態様:媒介
〒169-0072 東京都新宿区大久保1-15-15 AKIYAMA BLD 2階
宅地建物取引業 国土交通大臣(2)第9148号
(公社)東京都宅地建物取引業協会 会員
(公財)日本賃貸住宅管理協会 会員
(公社)首都圏不動産公正取引協議会 団体会員
(最終更新日:{date})
2025/10/05
次回更新日
2025/10/12
契約期間
-
0800-111-6663(無料)
海外から: +81-3-5155-4671