(最終更新日:2025年10月16日)
ID :1786491
※お問い合わせ時にこちらのID番号をスタッフにお伝えお願い致します。
1LDK マンション 賃貸 兵庫県 神戸市長田区MAXIV CITY神戸鷹取 202




賃料・初期費用
70,500円
管理費
4,000 円
敷金
0 円
礼金
70,500 円
物件情報
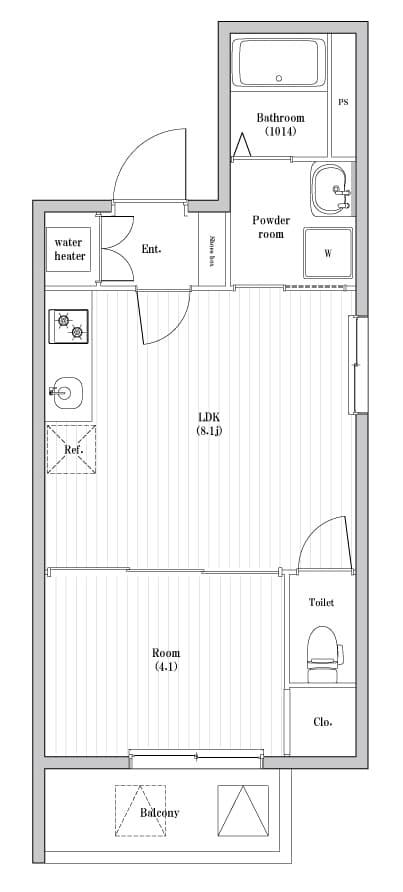
間取り
1LDK
面積
29.17㎡
築年
2025年9月
物件種別
マンション
アクセス
交通
山陽本線 鷹取 徒歩 6分
山陽本線 須磨海浜公園 徒歩 16分
住所
兵庫県 神戸市長田区 浪松町5丁目1-9
0800-111-6663(無料)
海外から: +81-3-5155-4671
詳細情報
賃料
管理費
70,500 円
4,000 円
敷金
礼金
0 円
70,500 円
保証金
敷引金・償却金
0 円
- 円
間取り
1LDK
面積
29.17㎡
築年
2025年9月
階
2階 / 3階建
向き
南東
物件種別
マンション
物件構造
重鉄骨造
住宅保険
要
入居可能日
即入居可
こだわり条件
2人入居可/風呂・トイレ別/シャワー有/IHコンロ/コンロ2口以上/洗濯機置き場(室内)/オートロック/フローリング/宅配ボックス/バイク置き場/TVモニター付きインターホン/温水洗浄便座/デザイナーズ/オール電化/インターネット使用料無料/クローゼット・押入れ/シューズインクローゼット/エアコン有
追記事項
-
備考
-
※ 掲載情報と現状が異なる場合は現状優先といたします。
所在地
住所
兵庫県 神戸市長田区 浪松町5丁目1-9
交通
山陽本線 鷹取 徒歩 6分
山陽本線 須磨海浜公園 徒歩 16分
備考
保証会社
加入要(保証会社名:株式会社グローバルトラストネットワークス)
保証会社利用料:初回保証料
月額総賃料の30%〜100%(最低保証料 20,000円〜)
+ 年間保証料(10,000円)もしくは月間保証料(1,000円〜)
情報提供元
株式会社グローバルトラストネットワークス 新大久保支店
取引態様:媒介
〒169-0072 東京都新宿区大久保1-15-15 AKIYAMA BLD 2階
宅地建物取引業 国土交通大臣(2)第9148号
(公社)東京都宅地建物取引業協会 会員
(公財)日本賃貸住宅管理協会 会員
(公社)首都圏不動産公正取引協議会 団体会員
(最終更新日:{date})
2025/10/14
次回更新日
2025/10/22
契約期間
-
0800-111-6663(無料)
海外から: +81-3-5155-4671