(最終更新日:2025年12月09日)
ID :1793666
※お問い合わせ時にこちらのID番号をスタッフにお伝えお願い致します。
1K マンション 賃貸 京都府 京都市中京区クレストタップ京都丹波口 401
































賃料・初期費用
73,300円
管理費
10,000 円
敷金
0 円
礼金
0 円
物件情報
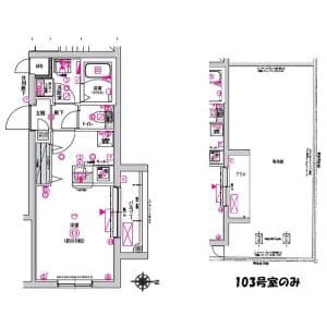
間取り
1K
面積
25.11㎡
築年
2025年10月
物件種別
マンション
アクセス
交通
山陰本線 丹波口 徒歩 8分
阪急京都本線 大宮 徒歩 13分
住所
京都府 京都市中京区 京都府京都市中京区壬生松原町49-4
0800-111-6663(無料)
海外から: +81-3-5155-4671
詳細情報
賃料
管理費
73,300 円
10,000 円
敷金
礼金
0 円
0 円
保証金
敷引金・償却金
0 円
- 円
間取り
1K
面積
25.11㎡
築年
2025年10月
階
4階 / 5階建
向き
南
物件種別
マンション
物件構造
鉄筋コンクリート造
住宅保険
要
入居可能日
即入居可
こだわり条件
2人入居可/ペット相談/風呂・トイレ別/洗濯機置き場有/オートロック/エレベータ有/バルコニー/宅配ボックス/駐輪場/角部屋/浴室乾燥機/防犯カメラ/インターネット使用料無料/エアコン有
追記事項
-
備考
-
※ 掲載情報と現状が異なる場合は現状優先といたします。
所在地
住所
京都府 京都市中京区 京都府京都市中京区壬生松原町49-4
交通
山陰本線 丹波口 徒歩 8分
阪急京都本線 大宮 徒歩 13分
備考
保証会社
加入要(保証会社名:株式会社グローバルトラストネットワークス)
保証会社利用料:初回保証料
月額総賃料の30%〜100%(最低保証料 20,000円〜)
+ 年間保証料(10,000円)もしくは月間保証料(1,000円〜)
情報提供元
株式会社グローバルトラストネットワークス 新大久保支店
取引態様:媒介
〒169-0072 東京都新宿区大久保1-15-15 AKIYAMA BLD 2階
宅地建物取引業 国土交通大臣(2)第9148号
(公社)東京都宅地建物取引業協会 会員
(公財)日本賃貸住宅管理協会 会員
(公社)首都圏不動産公正取引協議会 団体会員
(最終更新日:{date})
2025/12/08
次回更新日
2025/12/15
契約期間
-
0800-111-6663(無料)
海外から: +81-3-5155-4671









