(最終更新日:2025年10月21日)
☆ペット相談(猫2匹 or 小型犬2匹 or 中型犬1匹迄)その他要相談☆ ☆フリーレント1ヶ月(賃料のみ)☆
ID :1797294
※お問い合わせ時にこちらのID番号をスタッフにお伝えお願い致します。
1LDK マンション 賃貸 東京都 世田谷区ザハウス祐天寺 0203


















































賃料・初期費用
195,000円
管理費
20,000 円
敷金
195,000 円
礼金
0 円
物件情報
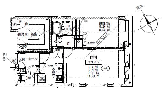
間取り
1LDK
面積
40.15㎡
築年
2024年1月
物件種別
マンション
アクセス
交通
東急東横線 祐天寺 徒歩 13分
東急東横線 学芸大学 徒歩 17分
住所
東京都 世田谷区 下馬1丁目24-15
0800-111-6663(無料)
海外から: +81-3-5155-4671
詳細情報
賃料
管理費
195,000 円
20,000 円
敷金
礼金
195,000 円
0 円
保証金
敷引金・償却金
- 円
- 円
間取り
1LDK
面積
40.15㎡
築年
2024年1月
階
2階 / 4階建
向き
東
物件種別
マンション
物件構造
鉄筋コンクリート造
住宅保険
要
入居可能日
ご相談
こだわり条件
ペット可/都市ガス/風呂・トイレ別/コンロ2口以上/洗濯機置き場(室内)/オートロック/フローリング/宅配ボックス/角部屋/TVモニター付きインターホン/温水洗浄便座/浴室乾燥機/独立洗面台/インターネット使用料無料/クローゼット・押入れ/シューズインクローゼット/エアコン有
追記事項
-
備考
■短期解約違約金:1年未満2カ月、2年未満1ヶ月 ■解約予告:2カ月前 ■プレミアデスク代の中に登録料4400円(税込)を含みます。 ■大手法人契約時【+礼1】で諸条件ご相談可 ■本物件は電子契約となります。 ■「どうぶつ専門家」への電話相談サービスあり(アニコムパフェ) ■審査時飼育の有無に関わらず、ペット面談(オンライン)あり ■ペット飼育時、敷金の積み増し・他条件の変更はございません。 ※写真は参考
※ 掲載情報と現状が異なる場合は現状優先といたします。
住所
東京都 世田谷区 下馬1丁目24-15
交通
東急東横線 祐天寺 徒歩 13分
東急東横線 学芸大学 徒歩 17分
備考
保証会社
加入要(保証会社名:株式会社グローバルトラストネットワークス)
保証会社利用料:初回保証料
月額総賃料の30%〜100%(最低保証料 20,000円〜)
+ 年間保証料(10,000円)もしくは月間保証料(1,000円〜)
情報提供元
株式会社グローバルトラストネットワークス 新大久保支店
取引態様:媒介
〒169-0072 東京都新宿区大久保1-15-15 AKIYAMA BLD 2階
宅地建物取引業 国土交通大臣(2)第9148号
(公社)東京都宅地建物取引業協会 会員
(公財)日本賃貸住宅管理協会 会員
(公社)首都圏不動産公正取引協議会 団体会員
(最終更新日:{date})
2025/10/20
次回更新日
2025/10/28
契約期間
-
0800-111-6663(無料)
海外から: +81-3-5155-4671