(最終更新日:2025年10月22日)
ID :1798525
※お問い合わせ時にこちらのID番号をスタッフにお伝えお願い致します。
1K マンション 賃貸 神奈川県 横浜市神奈川区メインステージ東神奈川II 0503


賃料・初期費用
90,000円
管理費
15,000 円
敷金
0 円
礼金
0 円
物件情報
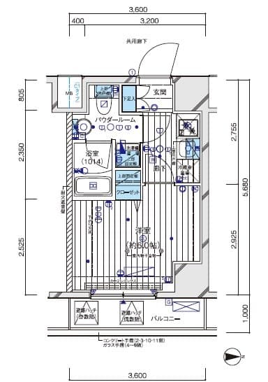
間取り
1K
面積
20.44㎡
築年
2021年12月
物件種別
マンション
アクセス
交通
京浜東北・根岸線 東神奈川 徒歩 3分
京急本線 仲木戸 徒歩 5分
住所
神奈川県 横浜市神奈川区 西神奈川1丁目
0800-111-6663(無料)
海外から: +81-3-5155-4671
詳細情報
賃料
管理費
90,000 円
15,000 円
敷金
礼金
0 円
0 円
保証金
敷引金・償却金
0 円
- 円
間取り
1K
面積
20.44㎡
築年
2021年12月
階
5階 / 11階建
向き
東
物件種別
マンション
物件構造
鉄筋コンクリート造
住宅保険
要
入居可能日
ご相談
こだわり条件
ペット相談/都市ガス/風呂・トイレ別/コンロ2口以上/洗濯機置き場(室内)/オートロック/フローリング/TVモニター付きインターホン/温水洗浄便座/浴室乾燥機/独立洗面台/インターネット使用料無料/クローゼット・押入れ/シューズインクローゼット/エアコン有
追記事項
-
備考
ペット可(敷1)引越業者当社指定保証会社必須(セゾン)退去時要清掃代解約予告50日前ネット込(シーファイブ)電力会社指定有
※ 掲載情報と現状が異なる場合は現状優先といたします。
住所
神奈川県 横浜市神奈川区 西神奈川1丁目
交通
京浜東北・根岸線 東神奈川 徒歩 3分
京急本線 仲木戸 徒歩 5分
備考
保証会社
加入要(保証会社名:株式会社グローバルトラストネットワークス)
保証会社利用料:初回保証料
月額総賃料の30%〜100%(最低保証料 20,000円〜)
+ 年間保証料(10,000円)もしくは月間保証料(1,000円〜)
情報提供元
株式会社グローバルトラストネットワークス 新大久保支店
取引態様:媒介
〒169-0072 東京都新宿区大久保1-15-15 AKIYAMA BLD 2階
宅地建物取引業 国土交通大臣(2)第9148号
(公社)東京都宅地建物取引業協会 会員
(公財)日本賃貸住宅管理協会 会員
(公社)首都圏不動産公正取引協議会 団体会員
(最終更新日:{date})
2025/10/21
次回更新日
2025/10/28
契約期間
-
0800-111-6663(無料)
海外から: +81-3-5155-4671