(最終更新日:2025年10月22日)
ID :1799572
※お問い合わせ時にこちらのID番号をスタッフにお伝えお願い致します。
1R アパート 賃貸 東京都 世田谷区グランエッグス北沢 02
































賃料・初期費用
111,000円
管理費
4,000 円
敷金
111,000 円
礼金
111,000 円
物件情報
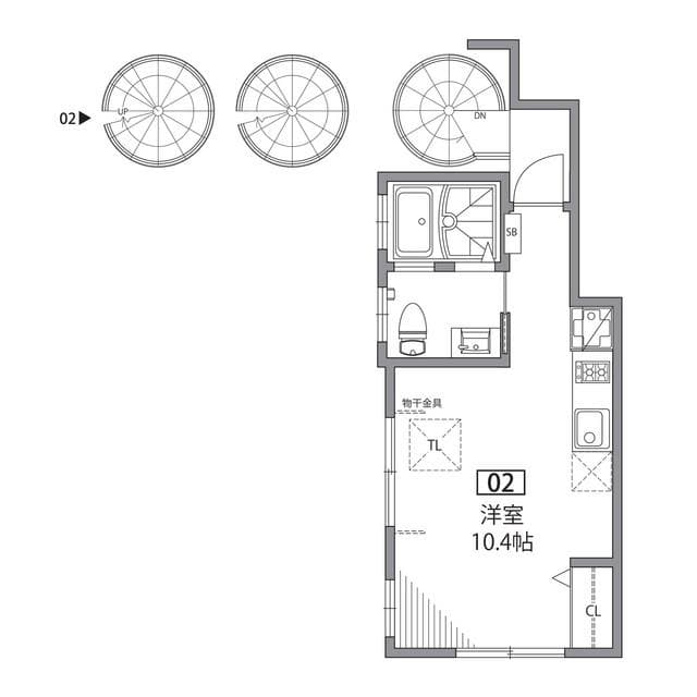
間取り
1R
面積
23.38㎡
築年
2014年3月
物件種別
アパート
アクセス
交通
小田急小田原線 下北沢 徒歩 15分
小田急小田原線 代々木上原 徒歩 12分
住所
東京都 世田谷区 北沢5丁目24-21
0800-111-6663(無料)
海外から: +81-3-5155-4671
詳細情報
賃料
管理費
111,000 円
4,000 円
敷金
礼金
111,000 円
111,000 円
保証金
敷引金・償却金
- 円
- 円
間取り
1R
面積
23.38㎡
築年
2014年3月
階
3階 / 3階建
向き
南
物件種別
アパート
物件構造
木造
住宅保険
不要
入居可能日
2025-12-中旬
こだわり条件
都市ガス/風呂・トイレ別/コンロ2口以上/追い焚き機能有/洗濯機置き場(室内)/フローリング/TVモニター付きインターホン/温水洗浄便座/浴室乾燥機/独立洗面台/インターネット使用料無料/エアコン有
追記事項
-
備考
角部屋, 外国人条件:社会人もしくは有名大学のみ 2年未満の解約で1ヵ月分の違約金特約有。敷金+1ヵ月, 鍵交換入居者負担なし, サポート24:22000円(税込み), 【物件担当】:熱田:080-9177-8467,,短期解約違約金:1年未満解約時違約金1ヶ月, / ★無料インターネット付きのデザイナーズ★最上階★
※ 掲載情報と現状が異なる場合は現状優先といたします。
住所
東京都 世田谷区 北沢5丁目24-21
交通
小田急小田原線 下北沢 徒歩 15分
小田急小田原線 代々木上原 徒歩 12分
備考
保証会社
加入要(保証会社名:株式会社グローバルトラストネットワークス)
保証会社利用料:初回保証料
月額総賃料の30%〜100%(最低保証料 20,000円〜)
+ 年間保証料(10,000円)もしくは月間保証料(1,000円〜)
情報提供元
株式会社グローバルトラストネットワークス 新大久保支店
取引態様:媒介
〒169-0072 東京都新宿区大久保1-15-15 AKIYAMA BLD 2階
宅地建物取引業 国土交通大臣(2)第9148号
(公社)東京都宅地建物取引業協会 会員
(公財)日本賃貸住宅管理協会 会員
(公社)首都圏不動産公正取引協議会 団体会員
(最終更新日:{date})
2025/10/22
次回更新日
2025/10/29
契約期間
-
0800-111-6663(無料)
海外から: +81-3-5155-4671