(最終更新日:2025年10月23日)
●先行契約必須●駐輪場 有:先着5台/300円(税込)●敷・礼0!●インターネット常時接続無料(Wifi付)!
ID :1801410
※お問い合わせ時にこちらのID番号をスタッフにお伝えお願い致します。
1LDK マンション 賃貸 東京都 大田区エルファーロ旗の台 502




賃料・初期費用
156,000円
管理費
10,000 円
敷金
0 円
礼金
0 円
物件情報
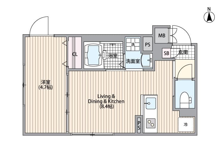
間取り
1LDK
面積
29.93㎡
築年
2025年12月
物件種別
マンション
アクセス
交通
東急大井町線 旗の台 徒歩 6分
東急池上線 長原 徒歩 5分
住所
東京都 大田区 北馬込1丁目1-以下未定
0800-111-6663(無料)
海外から: +81-3-5155-4671
詳細情報
賃料
管理費
156,000 円
10,000 円
敷金
礼金
0 円
0 円
保証金
敷引金・償却金
- 円
- 円
間取り
1LDK
面積
29.93㎡
築年
2025年12月
階
5階 / 5階建
向き
西
物件種別
マンション
物件構造
鉄筋コンクリート造
住宅保険
要
入居可能日
2026-1-上旬
こだわり条件
2人入居可/ペット相談/風呂・トイレ別/コンロ2口以上/追い焚き機能有/洗濯機置き場(室内)/オートロック/フローリング/TVモニター付きインターホン/温水洗浄便座/浴室乾燥機/インターネット使用料無料/クローゼット・押入れ/シューズインクローゼット/エアコン有
追記事項
-
備考
●先行契約必須●学生可(契約名義人は就職している親族に限る)●法人契約:敷金1ヶ月(保証会社:ジェイリース100%)●短期解約違約金有:1 年未満年未満解約賃料1ヶ月相当額●エアコンクリーニング11,000円/台(退去時必須)●ペット可(小型犬二匹まで・敷金1ヶ月償却)
※ 掲載情報と現状が異なる場合は現状優先といたします。
住所
東京都 大田区 北馬込1丁目1-以下未定
交通
東急大井町線 旗の台 徒歩 6分
東急池上線 長原 徒歩 5分
備考
保証会社
加入要(保証会社名:株式会社グローバルトラストネットワークス)
保証会社利用料:初回保証料
月額総賃料の30%〜100%(最低保証料 20,000円〜)
+ 年間保証料(10,000円)もしくは月間保証料(1,000円〜)
情報提供元
株式会社グローバルトラストネットワークス 新大久保支店
取引態様:媒介
〒169-0072 東京都新宿区大久保1-15-15 AKIYAMA BLD 2階
宅地建物取引業 国土交通大臣(2)第9148号
(公社)東京都宅地建物取引業協会 会員
(公財)日本賃貸住宅管理協会 会員
(公社)首都圏不動産公正取引協議会 団体会員
(最終更新日:{date})
2025/10/23
次回更新日
2025/10/30
契約期間
-
0800-111-6663(無料)
海外から: +81-3-5155-4671