(最終更新日:2025年10月30日)
☆★敷金・礼金 ゼロゼロ★☆ ペット可(小型犬または猫1匹迄)
ID :1806841
※お問い合わせ時にこちらのID番号をスタッフにお伝えお願い致します。
1LDK マンション 賃貸 東京都 大田区アレーロ大岡山 103
































賃料・初期費用
139,000円
管理費
15,000 円
敷金
0 円
礼金
0 円
物件情報
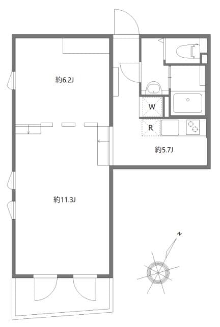
間取り
1LDK
面積
42.51㎡
築年
2015年4月
物件種別
マンション
アクセス
交通
東急大井町線 北千束 徒歩 3分
東急目黒線 洗足 徒歩 7分
住所
東京都 大田区 北千束2丁目26-7
0800-111-6663(無料)
海外から: +81-3-5155-4671
詳細情報
賃料
管理費
139,000 円
15,000 円
敷金
礼金
0 円
0 円
保証金
敷引金・償却金
0 円
- 円
間取り
1LDK
面積
42.51㎡
築年
2015年4月
階
1階 / 4階建
向き
南東
物件種別
マンション
物件構造
鉄筋コンクリート造
住宅保険
要
入居可能日
ご相談
こだわり条件
ペット可/都市ガス/風呂・トイレ別/シャワー有/コンロ2口以上/洗濯機置き場(室内)/オートロック/バルコニー/フローリング/宅配ボックス/駐輪場/TVモニター付きインターホン/温水洗浄便座/デザイナーズ/浴室乾燥機/独立洗面台/インターネット使用料無料/シューズインクローゼット/エアコン有
追記事項
-
備考
■短期解約違約金:1年未満1カ月 ■解約予告:2カ月前 ■プレミアデスク代の中に登録料4400円(税込)を含みます。 ■大手法人契約時【+礼1】で諸条件ご相談可 ■PET飼育時 敷金1ヶ月プラス ※写真は参考となりますのでご注意ください。
※ 掲載情報と現状が異なる場合は現状優先といたします。
所在地
住所
東京都 大田区 北千束2丁目26-7
交通
東急大井町線 北千束 徒歩 3分
東急目黒線 洗足 徒歩 7分
備考
保証会社
加入要(保証会社名:株式会社グローバルトラストネットワークス)
保証会社利用料:初回保証料
月額総賃料の30%〜100%(最低保証料 20,000円〜)
+ 年間保証料(10,000円)もしくは月間保証料(1,000円〜)
情報提供元
株式会社グローバルトラストネットワークス 新大久保支店
取引態様:媒介
〒169-0072 東京都新宿区大久保1-15-15 AKIYAMA BLD 2階
宅地建物取引業 国土交通大臣(2)第9148号
(公社)東京都宅地建物取引業協会 会員
(公財)日本賃貸住宅管理協会 会員
(公社)首都圏不動産公正取引協議会 団体会員
(最終更新日:{date})
2025/10/29
次回更新日
2025/11/06
契約期間
-
0800-111-6663(無料)
海外から: +81-3-5155-4671