(最終更新日:2025年10月30日)
☆インターネット無料(つなぐネットコミュニケーションズに限る)☆ ☆ペット飼育可(小型犬・猫 1匹迄
ID :1806844
※お問い合わせ時にこちらのID番号をスタッフにお伝えお願い致します。
1DK マンション 賃貸 東京都 渋谷区ルクレ初台 0205
































賃料・初期費用
135,000円
管理費
15,000 円
敷金
0 円
礼金
135,000 円
物件情報
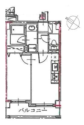
間取り
1DK
面積
30.22㎡
築年
2003年5月
物件種別
マンション
アクセス
交通
京王線 初台 徒歩 8分
京王線 幡ヶ谷 徒歩 8分
住所
東京都 渋谷区 初台1丁目29-10
0800-111-6663(無料)
海外から: +81-3-5155-4671
詳細情報
賃料
管理費
135,000 円
15,000 円
敷金
礼金
0 円
135,000 円
保証金
敷引金・償却金
- 円
- 円
間取り
1DK
面積
30.22㎡
築年
2003年5月
階
3階 / 6階建
向き
南西
物件種別
マンション
物件構造
鉄筋コンクリート造
住宅保険
要
入居可能日
ご相談
こだわり条件
ペット可/都市ガス/風呂・トイレ別/コンロ2口以上/洗濯機置き場(室内)/オートロック/エレベータ有/バルコニー/フローリング/宅配ボックス/TVモニター付きインターホン/独立洗面台/インターネット使用料無料/クローゼット・押入れ/エアコン有
追記事項
-
備考
■短期解約違約金:無 ■解約予告:2カ月前 ■プレミアデスク代の中に登録料4400円(税込)を含みます。 ■大手法人契約時【+礼1】で諸条件ご相談可 ■PET飼育時:敷金1ヶ月プラス(小型犬・猫1匹まで) ■1階は駐車場になります。 ※電力会社の指定有り。イーネットワークシステムズ 03-6809-4061
※ 掲載情報と現状が異なる場合は現状優先といたします。
所在地
住所
東京都 渋谷区 初台1丁目29-10
交通
京王線 初台 徒歩 8分
京王線 幡ヶ谷 徒歩 8分
備考
保証会社
加入要(保証会社名:株式会社グローバルトラストネットワークス)
保証会社利用料:初回保証料
月額総賃料の30%〜100%(最低保証料 20,000円〜)
+ 年間保証料(10,000円)もしくは月間保証料(1,000円〜)
情報提供元
株式会社グローバルトラストネットワークス 新大久保支店
取引態様:媒介
〒169-0072 東京都新宿区大久保1-15-15 AKIYAMA BLD 2階
宅地建物取引業 国土交通大臣(2)第9148号
(公社)東京都宅地建物取引業協会 会員
(公財)日本賃貸住宅管理協会 会員
(公社)首都圏不動産公正取引協議会 団体会員
(最終更新日:{date})
2025/10/29
次回更新日
2025/11/06
契約期間
-
0800-111-6663(無料)
海外から: +81-3-5155-4671

