(最終更新日:2025年10月30日)
★バストイレ別★独立洗面台★2口ガスコンロ★シャッター★
ID :1812660
※お問い合わせ時にこちらのID番号をスタッフにお伝えお願い致します。
1K アパート 賃貸 千葉県 松戸市アムール L.A 205
































賃料・初期費用
57,000円
管理費
3,000 円
敷金
- 円
礼金
57,000 円
物件情報
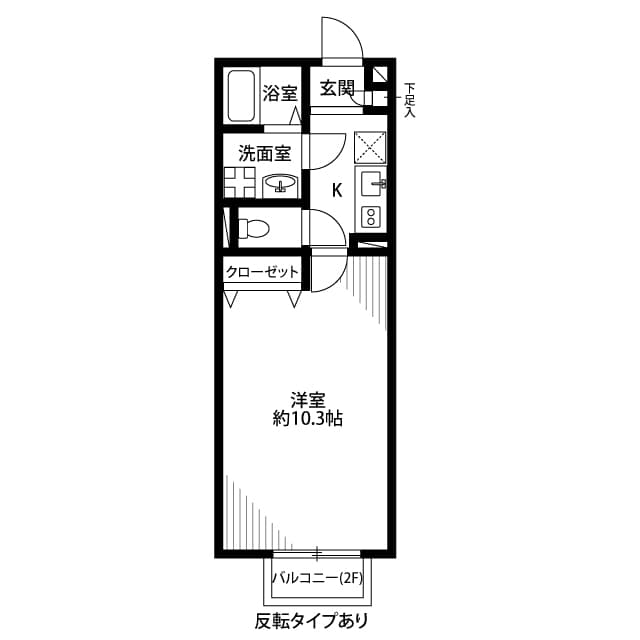
間取り
1K
面積
28.98㎡
築年
2007年3月
物件種別
アパート
アクセス
交通
北総鉄道 北国分 徒歩 22分
住所
千葉県 松戸市 二十世紀が丘美野里町157-1
0800-111-6663(無料)
海外から: +81-3-5155-4671
詳細情報
賃料
管理費
57,000 円
3,000 円
敷金
礼金
- 円
57,000 円
保証金
敷引金・償却金
- 円
- 円
間取り
1K
面積
28.98㎡
築年
2007年3月
階
2階 / 2階建
向き
南
物件種別
アパート
物件構造
木造
住宅保険
不要
入居可能日
2025-12
こだわり条件
プロパンガス/風呂・トイレ別/洗髪洗面化粧台有/洗濯機置き場(室内)/バルコニー/フローリング/駐輪場/光インターネット回線/TVモニター付きインターホン/浴室乾燥機/洗面所/エアコン有
追記事項
-
備考
★BBM−NET(インターネット月額基本使用料無料) 導入物件!!
※ 掲載情報と現状が異なる場合は現状優先といたします。
住所
千葉県 松戸市 二十世紀が丘美野里町157-1
交通
北総鉄道 北国分 徒歩 22分
備考
保証会社
加入要(保証会社名:株式会社グローバルトラストネットワークス)
保証会社利用料:初回保証料
月額総賃料の30%〜100%(最低保証料 20,000円〜)
+ 年間保証料(10,000円)もしくは月間保証料(1,000円〜)
情報提供元
株式会社グローバルトラストネットワークス 新大久保支店
取引態様:媒介
〒169-0072 東京都新宿区大久保1-15-15 AKIYAMA BLD 2階
宅地建物取引業 国土交通大臣(2)第9148号
(公社)東京都宅地建物取引業協会 会員
(公財)日本賃貸住宅管理協会 会員
(公社)首都圏不動産公正取引協議会 団体会員
(最終更新日:{date})
2025/10/29
次回更新日
2025/11/06
契約期間
-
0800-111-6663(無料)
海外から: +81-3-5155-4671
