(最終更新日:2025年10月30日)
浴室換気乾燥機、追い炊き機能有り
ID :1812668
※お問い合わせ時にこちらのID番号をスタッフにお伝えお願い致します。
1LDK アパート 賃貸 千葉県 習志野市ブラッサム サン バレー 103


























賃料・初期費用
80,000円
管理費
4,000 円
敷金
- 円
礼金
80,000 円
物件情報
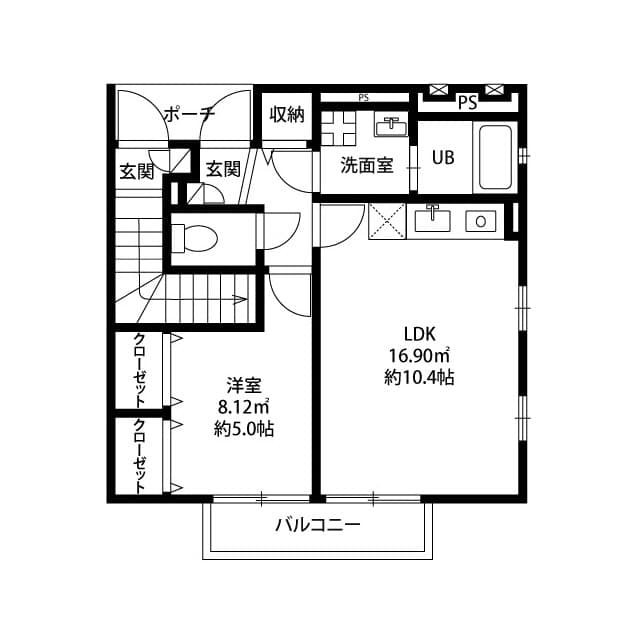
間取り
1LDK
面積
39.31㎡
築年
2013年3月
物件種別
アパート
アクセス
交通
総武線 津田沼 徒歩 17分
総武線 東船橋 徒歩 13分
京成本線 谷津 徒歩 17分
住所
千葉県 習志野市 谷津6-17-21
0800-111-6663(無料)
海外から: +81-3-5155-4671
詳細情報
賃料
管理費
80,000 円
4,000 円
敷金
礼金
- 円
80,000 円
保証金
敷引金・償却金
- 円
- 円
間取り
1LDK
面積
39.31㎡
築年
2013年3月
階
1階 / 2階建
向き
南西
物件種別
アパート
物件構造
木造
住宅保険
要
入居可能日
2025-11
こだわり条件
2人入居可/都市ガス/風呂・トイレ別/システムキッチン/洗髪洗面化粧台有/洗濯機置き場(室内)/バルコニー/フローリング/駐輪場/角部屋/TVモニター付きインターホン/温水洗浄便座/浴室乾燥機/洗面所/エアコン有
追記事項
-
備考
2口ガスコンロ、独立洗面化粧台、温水洗浄暖房便座
※ 掲載情報と現状が異なる場合は現状優先といたします。
住所
千葉県 習志野市 谷津6-17-21
交通
総武線 津田沼 徒歩 17分
総武線 東船橋 徒歩 13分
京成本線 谷津 徒歩 17分
備考
保証会社
加入要(保証会社名:株式会社グローバルトラストネットワークス)
保証会社利用料:初回保証料
月額総賃料の30%〜100%(最低保証料 20,000円〜)
+ 年間保証料(10,000円)もしくは月間保証料(1,000円〜)
情報提供元
株式会社グローバルトラストネットワークス 新大久保支店
取引態様:媒介
〒169-0072 東京都新宿区大久保1-15-15 AKIYAMA BLD 2階
宅地建物取引業 国土交通大臣(2)第9148号
(公社)東京都宅地建物取引業協会 会員
(公財)日本賃貸住宅管理協会 会員
(公社)首都圏不動産公正取引協議会 団体会員
(最終更新日:{date})
2025/10/29
次回更新日
2025/11/06
契約期間
-
0800-111-6663(無料)
海外から: +81-3-5155-4671