(最終更新日:2025年12月14日)
ID :1812914
※お問い合わせ時にこちらのID番号をスタッフにお伝えお願い致します。
3DK 一戸建 賃貸 茨城県 鹿嶋市鹿嶋戸建 1




























賃料・初期費用
49,000円
管理費
0 円
敷金
0 円
礼金
0 円
物件情報
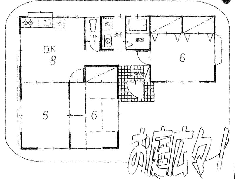
間取り
3DK
面積
59.62㎡
築年
2000年10月
物件種別
一戸建
アクセス
交通
鹿島臨海鉄道大洗鹿島線 長者ヶ浜潮騒はまなす公園前 徒歩 14分
住所
茨城県 鹿嶋市 大字角折1349-11
0800-111-6663(無料)
海外から: +81-3-5155-4671
詳細情報
賃料
管理費
49,000 円
0 円
敷金
礼金
0 円
0 円
保証金
敷引金・償却金
- 円
- 円
間取り
3DK
面積
59.62㎡
築年
2000年10月
階
1階 / 1階建
向き
-
物件種別
一戸建
物件構造
木造
住宅保険
要
入居可能日
即入居可
こだわり条件
事務所可/2人入居可/ペット可/プロパンガス/風呂・トイレ別/洗濯機置き場(室内)/フローリング/温水洗浄便座/独立洗面台
追記事項
-
備考
★即入居可能 ★ペット可(敷金積増償却1・賃料+2千円)★外国籍(留学生含む)・年金受給の方もご相談ください※短期解約違約金:1年未満2か月、2年未満1か月 ※保険は2年毎更新
※ 掲載情報と現状が異なる場合は現状優先といたします。
所在地
住所
茨城県 鹿嶋市 大字角折1349-11
交通
鹿島臨海鉄道大洗鹿島線 長者ヶ浜潮騒はまなす公園前 徒歩 14分
備考
保証会社
加入要(保証会社名:株式会社グローバルトラストネットワークス)
保証会社利用料:初回保証料
月額総賃料の30%〜100%(最低保証料 20,000円〜)
+ 年間保証料(10,000円)もしくは月間保証料(1,000円〜)
情報提供元
株式会社グローバルトラストネットワークス 新大久保支店
取引態様:媒介
〒169-0072 東京都新宿区大久保1-15-15 AKIYAMA BLD 2階
宅地建物取引業 国土交通大臣(2)第9148号
(公社)東京都宅地建物取引業協会 会員
(公財)日本賃貸住宅管理協会 会員
(公社)首都圏不動産公正取引協議会 団体会員
(最終更新日:{date})
2025/12/14
次回更新日
2025/12/21
契約期間
-
0800-111-6663(無料)
海外から: +81-3-5155-4671