(最終更新日:2025年12月25日)

ID :1909583

※お問い合わせ時にこちらのID番号をスタッフにお伝えお願い致します。

1K マンション 賃貸 東京都 北区メインステージ滝野川桜通り 0902

Property
Property
Property
Property
Property
Property
Property
Property
Property
Property
Property
Property
Property
Property
Property
Property
Property
Property
Property
Property
Property
Property
Property
Property
Property
Property
Property
Property
Property
Property
Property
Property

賃料・初期費用

109,500

管理費
15,000
敷金
0
礼金
109,500

物件情報

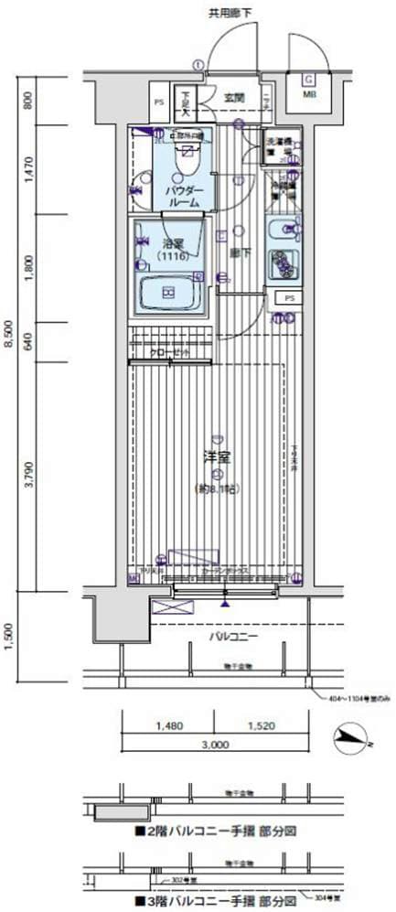
間取り
1K
面積
25.5㎡
築年
2007年7月
物件種別
マンション

アクセス

交通

埼京線 板橋 徒歩 3分

住所
東京都 北区 滝野川7丁目17番12号
0800-111-6663(無料

海外から: +81-3-5155-4671

詳細情報

賃料 管理費
109,500 円 15,000 円
敷金 礼金
0 円 109,500 円
保証金 敷引金・償却金
0 円 - 円
間取り
1K
面積
25.5㎡
築年
2007年7月
9階 / 11階建
向き
北東
物件種別
マンション
物件構造
鉄筋コンクリート造
住宅保険
入居可能日
ご相談
こだわり条件
楽器相談可/都市ガス/風呂・トイレ別/オートロック/エレベータ有/宅配ボックス/24時間ゴミ出し可/防犯カメラ/エアコン有
追記事項
-
備考
引越業者当社指定保証会社必須(エポス)退去時要清掃代解約予告50日前楽器可能電力会社指定有

※ 掲載情報と現状が異なる場合は現状優先といたします。

住所
東京都 北区 滝野川7丁目17番12号
交通
埼京線 板橋 徒歩 3分

備考

保証会社
加入要(保証会社名:株式会社グローバルトラストネットワークス) 保証会社利用料:初回保証料 月額総賃料の30%〜100%(最低保証料 20,000円〜) + 年間保証料(10,000円)もしくは月間保証料(1,000円〜)
情報提供元
株式会社グローバルトラストネットワークス 新大久保支店 取引態様:媒介 〒169-0072 東京都新宿区大久保1-15-15 AKIYAMA BLD 2階 宅地建物取引業 国土交通大臣(2)第9148号 (公社)東京都宅地建物取引業協会 会員 (公財)日本賃貸住宅管理協会 会員 (公社)首都圏不動産公正取引協議会 団体会員
(最終更新日:{date})
2025/12/24
次回更新日
2025/12/31
契約期間
-
お問い合わせ

多言語での応対可能!!

お部屋探しを 依頼してみませんか?

より良い情報を提供できるように、プライバシーポリシーに基づいたCookieの取得と利用に同意をお願いいたします。🍪