(最終更新日:2025年12月29日)
ID :1916365
※お問い合わせ時にこちらのID番号をスタッフにお伝えお願い致します。
1DK マンション 賃貸 東京都 葛飾区ラフィスタ亀有 405




































賃料・初期費用
110,000円
管理費
14,000 円
敷金
0 円
礼金
110,000 円
物件情報
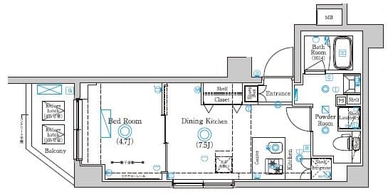
間取り
1DK
面積
29.01㎡
築年
2022年3月
物件種別
マンション
アクセス
交通
常磐緩行線 亀有 徒歩 8分
京成本線 お花茶屋 徒歩 23分
住所
東京都 葛飾区 亀有1丁目25-22
0800-111-6663(無料)
海外から: +81-3-5155-4671
詳細情報
賃料
管理費
110,000 円
14,000 円
敷金
礼金
0 円
110,000 円
保証金
敷引金・償却金
0 円
- 円
間取り
1DK
面積
29.01㎡
築年
2022年3月
階
4階 / 8階建
向き
東
物件種別
マンション
物件構造
鉄筋コンクリート造
住宅保険
要
入居可能日
2026-3-上旬
こだわり条件
2人入居可/ペット相談/都市ガス/風呂・トイレ別/シャワー有/洗濯機置き場(室内)/オートロック/エレベータ有/フローリング/宅配ボックス/バイク置き場/TVモニター付きインターホン/温水洗浄便座/デザイナーズ/浴室乾燥機/インターネット使用料無料/クローゼット・押入れ/シューズインクローゼット/エアコン有
追記事項
-
備考
-
※ 掲載情報と現状が異なる場合は現状優先といたします。
住所
東京都 葛飾区 亀有1丁目25-22
交通
常磐緩行線 亀有 徒歩 8分
京成本線 お花茶屋 徒歩 23分
備考
保証会社
加入要(保証会社名:株式会社グローバルトラストネットワークス)
保証会社利用料:初回保証料
月額総賃料の30%〜100%(最低保証料 20,000円〜)
+ 年間保証料(10,000円)もしくは月間保証料(1,000円〜)
情報提供元
株式会社グローバルトラストネットワークス 新大久保支店
取引態様:媒介
〒169-0072 東京都新宿区大久保1-15-15 AKIYAMA BLD 2階
宅地建物取引業 国土交通大臣(2)第9148号
(公社)東京都宅地建物取引業協会 会員
(公財)日本賃貸住宅管理協会 会員
(公社)首都圏不動産公正取引協議会 団体会員
(最終更新日:{date})
2025/12/28
次回更新日
2026/01/04
契約期間
-
0800-111-6663(無料)
海外から: +81-3-5155-4671