(最終更新日:2026年02月24日)
ID :1989196
※お問い合わせ時にこちらのID番号をスタッフにお伝えお願い致します。
1R アパート 賃貸 東京都 世田谷区祖師谷アパートメントW 03


















賃料・初期費用
72,000円
管理費
4,000 円
敷金
0 円
礼金
72,000 円
物件情報
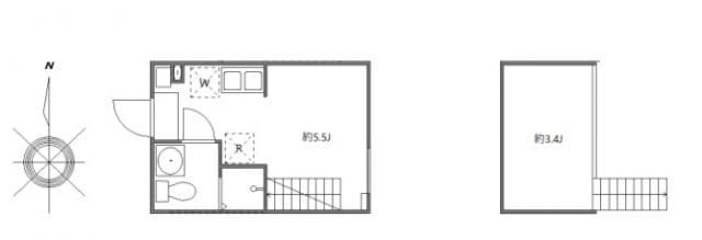
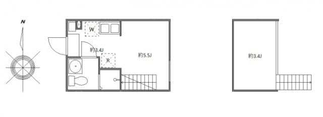
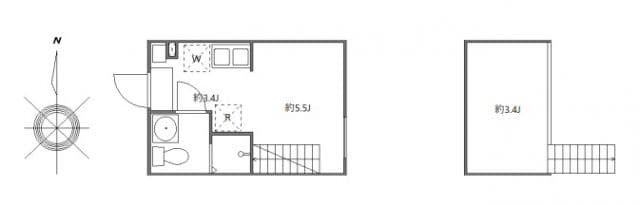
間取り
1R
面積
14.74㎡
築年
2021年8月
物件種別
アパート
アクセス
交通
小田急小田原線 祖師谷大蔵 徒歩 7分
小田急小田原線 千歳船橋 徒歩 16分
住所
東京都 世田谷区 祖師谷1丁目21-13
0800-111-6663(無料)
海外から: +81-3-5155-4671
詳細情報
賃料
管理費
72,000 円
4,000 円
敷金
礼金
0 円
72,000 円
保証金
敷引金・償却金
- 円
- 円
間取り
1R
面積
14.74㎡
築年
2021年8月
階
1階 / 3階建
向き
西
物件種別
アパート
物件構造
木造
住宅保険
不要
入居可能日
2026-4-中旬
こだわり条件
都市ガス/風呂・トイレ別/コンロ2口以上/洗濯機置き場(室内)/フローリング/TVモニター付きインターホン/温水洗浄便座/浴室乾燥機/防犯カメラ/インターネット使用料無料/シューズインクローゼット/エアコン有
追記事項
-
その他費用
サポート24:22000
火災保険料:18000
退去時クリーニング費用:55000
備考
角部屋, 外国籍相談可:2年未満解約で違約金1か月(共益費含む),鍵交換入居者負担なし, サポート24:22000円(税込み), 短期解約違約金あり, 先行契約(先行申込不可)
※ 掲載情報と現状が異なる場合は現状優先といたします。
所在地
住所
東京都 世田谷区 祖師谷1丁目21-13
交通
小田急小田原線 祖師谷大蔵 徒歩 7分
小田急小田原線 千歳船橋 徒歩 16分
備考
保証会社
加入要(保証会社名:株式会社グローバルトラストネットワークス)
保証会社利用料:初回保証料
月額総賃料の30%〜100%(最低保証料 20,000円〜)
+ 年間保証料(10,000円)もしくは月間保証料(1,000円〜)
情報提供元
株式会社グローバルトラストネットワークス 新大久保支店
取引態様:媒介
〒169-0072 東京都新宿区大久保1-15-15 AKIYAMA BLD 2階
宅地建物取引業 国土交通大臣(2)第9148号
(公社)東京都宅地建物取引業協会 会員
(公財)日本賃貸住宅管理協会 会員
(公社)首都圏不動産公正取引協議会 団体会員
(最終更新日:{date})
2026/02/24
次回更新日
2026/03/03
契約期間
-
0800-111-6663(無料)
海外から: +81-3-5155-4671






