(最終更新日:2026年02月24日)
ID :1989237
※お問い合わせ時にこちらのID番号をスタッフにお伝えお願い致します。
1R マンション 賃貸 神奈川県 横浜市中区プレール・ドゥーク横浜サウスメゾンロワール 602








































賃料・初期費用
71,000円
管理費
8,000 円
敷金
0 円
礼金
71,000 円
物件情報
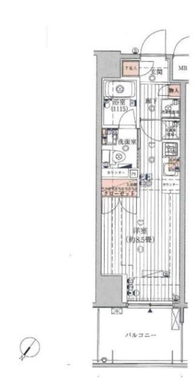
間取り
1R
面積
23.24㎡
築年
2008年3月
物件種別
マンション
アクセス
交通
京急本線 黄金町 徒歩 4分
横浜市営ブルーライン 阪東橋 徒歩 7分
住所
神奈川県 横浜市中区 初音町2丁目41-2
0800-111-6663(無料)
海外から: +81-3-5155-4671
詳細情報
賃料
管理費
71,000 円
8,000 円
敷金
礼金
0 円
71,000 円
保証金
敷引金・償却金
- 円
- 円
間取り
1R
面積
23.24㎡
築年
2008年3月
階
6階 / 11階建
向き
北西
物件種別
マンション
物件構造
鉄筋コンクリート造
住宅保険
不要
入居可能日
2026-3-中旬
こだわり条件
都市ガス/風呂・トイレ別/シャワー有/コンロ2口以上/追い焚き機能有/洗濯機置き場(室内)/オートロック/エレベータ有/バルコニー/フローリング/宅配ボックス/駐輪場/光インターネット回線/TVモニター付きインターホン/温水洗浄便座/浴室乾燥機/24時間ゴミ出し可/独立洗面台/防犯カメラ/クローゼット・押入れ/シューズインクローゼット/エアコン有
追記事項
-
その他費用
室内抗菌代:18150
備考
-
※ 掲載情報と現状が異なる場合は現状優先といたします。
所在地
住所
神奈川県 横浜市中区 初音町2丁目41-2
交通
京急本線 黄金町 徒歩 4分
横浜市営ブルーライン 阪東橋 徒歩 7分
備考
保証会社
加入要(保証会社名:株式会社グローバルトラストネットワークス)
保証会社利用料:初回保証料
月額総賃料の30%〜100%(最低保証料 20,000円〜)
+ 年間保証料(10,000円)もしくは月間保証料(1,000円〜)
情報提供元
株式会社グローバルトラストネットワークス 新大久保支店
取引態様:媒介
〒169-0072 東京都新宿区大久保1-15-15 AKIYAMA BLD 2階
宅地建物取引業 国土交通大臣(2)第9148号
(公社)東京都宅地建物取引業協会 会員
(公財)日本賃貸住宅管理協会 会員
(公社)首都圏不動産公正取引協議会 団体会員
(最終更新日:{date})
2026/02/24
次回更新日
2026/03/03
契約期間
-
0800-111-6663(無料)
海外から: +81-3-5155-4671


