(最終更新日:2026年02月25日)
ID :1990095
※お問い合わせ時にこちらのID番号をスタッフにお伝えお願い致します。
1K マンション 賃貸 東京都 墨田区メインステージ錦糸町 0301
















賃料・初期費用
100,000円
管理費
15,000 円
敷金
0 円
礼金
100,000 円
物件情報
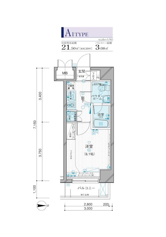
間取り
1K
面積
21.5㎡
築年
2006年6月
物件種別
マンション
アクセス
交通
総武本線 錦糸町 徒歩 8分
半蔵門線 錦糸町 徒歩 9分
住所
東京都 墨田区 太平1丁目2-7
0800-111-6663(無料)
海外から: +81-3-5155-4671
詳細情報
賃料
管理費
100,000 円
15,000 円
敷金
礼金
0 円
100,000 円
保証金
敷引金・償却金
0 円
- 円
間取り
1K
面積
21.5㎡
築年
2006年6月
階
3階 / 8階建
向き
東
物件種別
マンション
物件構造
鉄筋コンクリート造
住宅保険
要
入居可能日
ご相談
こだわり条件
都市ガス/風呂・トイレ別/コンロ2口以上/洗濯機置き場(室内)/オートロック/エレベータ有/バルコニー/宅配ボックス/駐輪場/バイク置き場/光インターネット回線/角部屋/TVモニター付きインターホン/温水洗浄便座/浴室乾燥機/耐震構造/24時間ゴミ出し可/独立洗面台/防犯カメラ/クローゼット・押入れ/シューズインクローゼット/エアコン有
追記事項
-
その他費用
ハウスクリーニング費用(退去時請求):49500
退去時鍵交換費用(契約時請求):29700
AMLクラブサポート費用(契約時請求):16500
備考
-
※ 掲載情報と現状が異なる場合は現状優先といたします。
所在地
住所
東京都 墨田区 太平1丁目2-7
交通
総武本線 錦糸町 徒歩 8分
半蔵門線 錦糸町 徒歩 9分
備考
保証会社
加入要(保証会社名:株式会社グローバルトラストネットワークス)
保証会社利用料:初回保証料
月額総賃料の30%〜100%(最低保証料 20,000円〜)
+ 年間保証料(10,000円)もしくは月間保証料(1,000円〜)
情報提供元
株式会社グローバルトラストネットワークス 新大久保支店
取引態様:媒介
〒169-0072 東京都新宿区大久保1-15-15 AKIYAMA BLD 2階
宅地建物取引業 国土交通大臣(2)第9148号
(公社)東京都宅地建物取引業協会 会員
(公財)日本賃貸住宅管理協会 会員
(公社)首都圏不動産公正取引協議会 団体会員
(最終更新日:{date})
2026/02/21
次回更新日
2026/03/03
契約期間
-
0800-111-6663(無料)
海外から: +81-3-5155-4671


