(最終更新日:2026年03月09日)
ID :2014777
※お問い合わせ時にこちらのID番号をスタッフにお伝えお願い致します。
1LDK マンション 賃貸 東京都 中央区フロリスオーランティウム3 1002














賃料・初期費用
195,000円
管理費
11,000 円
敷金
0 円
礼金
195,000 円
物件情報
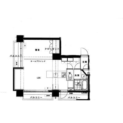
間取り
1LDK
面積
46.6㎡
築年
1971年11月
物件種別
マンション
アクセス
交通
有楽町線 月島 徒歩 2分
都営大江戸線 月島 徒歩 2分
住所
東京都 中央区 月島1丁目27-1
0800-111-6663(無料)
海外から: +81-3-5155-4671
詳細情報
賃料
管理費
195,000 円
11,000 円
敷金
礼金
0 円
195,000 円
保証金
敷引金・償却金
- 円
- 円
間取り
1LDK
面積
46.6㎡
築年
1971年11月
階
10階 / 13階建
向き
南東
物件種別
マンション
物件構造
鉄筋コンクリート造
住宅保険
要
入居可能日
2026-4-中旬
こだわり条件
2人入居可/定期借家権有/風呂・トイレ別/洗濯機置き場(室内)/オートロック/エレベータ有/宅配ボックス/家具・家電付き
追記事項
-
その他費用
事務手数料:22000
退去時精算手数料:5500
備考
リブクラブ2200円(月額) SBI少額短期保険800円(月額) ■鍵交換代16500円■退去時クリーンコート代99000円■事務手数料22000円■退去時精算手数料5500円(最終請求時)■リブクラブ2200円/月■SBI少額短期保険800円/月■指定賃貸保証加入(総賃料100%)■賃料等引き落とし料330円/月■家具家電撤去費用27500円(家具家電無し契約を希望の場合)■短期解約違約金:賃料1ヶ月分(1年未満)■モバイルwifi(50GB)付■民泊・簡易宿泊
※ 掲載情報と現状が異なる場合は現状優先といたします。
所在地
住所
東京都 中央区 月島1丁目27-1
交通
有楽町線 月島 徒歩 2分
都営大江戸線 月島 徒歩 2分
備考
保証会社
加入要(保証会社名:株式会社グローバルトラストネットワークス)
保証会社利用料:初回保証料
月額総賃料の30%〜100%(最低保証料 20,000円〜)
+ 年間保証料(10,000円)もしくは月間保証料(1,000円〜)
情報提供元
株式会社グローバルトラストネットワークス 新大久保支店
取引態様:媒介
〒169-0072 東京都新宿区大久保1-15-15 AKIYAMA BLD 2階
宅地建物取引業 国土交通大臣(2)第9148号
(公社)東京都宅地建物取引業協会 会員
(公財)日本賃貸住宅管理協会 会員
(公社)首都圏不動産公正取引協議会 団体会員
(最終更新日:{date})
2026/03/08
次回更新日
2026/03/15
契約期間
定期借家 24ヶ月
0800-111-6663(無料)
海外から: +81-3-5155-4671









