(最終更新日:2026年03月14日)

ID :2022514

※お問い合わせ時にこちらのID番号をスタッフにお伝えお願い致します。

1K マンション 賃貸 東京都 品川区メインステージ不動前II 0704

Property
Property
Property
Property
Property
Property
Property
Property
Property
Property
Property
Property
Property
Property
Property
Property
Property
Property
Property
Property
Property
Property

賃料・初期費用

111,000

管理費
15,000
敷金
0
礼金
111,000

物件情報

間取り
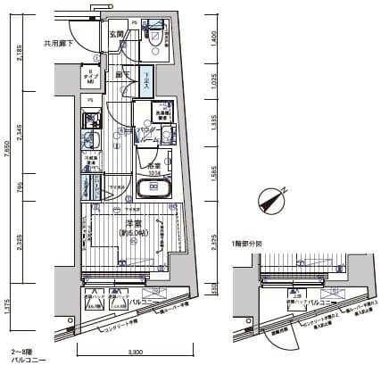
1K
面積
22.01㎡
築年
2021年2月
物件種別
マンション

アクセス

交通

東急目黒線 不動前 徒歩 10分

都営浅草線 戸越 徒歩 10分

住所
東京都 品川区 荏原1丁目10番2号
0800-111-6663(無料

海外から: +81-3-5155-4671

詳細情報

賃料 管理費
111,000 円 15,000 円
敷金 礼金
0 円 111,000 円
保証金 敷引金・償却金
0 円 - 円
間取り
1K
面積
22.01㎡
築年
2021年2月
7階 / 11階建
向き
南東
物件種別
マンション
物件構造
鉄筋コンクリート造
住宅保険
入居可能日
ご相談
こだわり条件
ペット相談/都市ガス/風呂・トイレ別/コンロ2口以上/洗濯機置き場(室内)/オートロック/エレベータ有/バルコニー/宅配ボックス/駐輪場/光インターネット回線/TVモニター付きインターホン/温水洗浄便座/浴室乾燥機/24時間ゴミ出し可/独立洗面台/防犯カメラ/クローゼット・押入れ/シューズインクローゼット/エアコン有
追記事項
-
その他費用
ハウスクリーニング費用(退去時請求):49500 退去時鍵交換費用(契約時請求):29700 AMLクラブサポート費用(契約時請求):16500
備考
-

※ 掲載情報と現状が異なる場合は現状優先といたします。

所在地

住所
東京都 品川区 荏原1丁目10番2号
交通
東急目黒線 不動前 徒歩 10分 都営浅草線 戸越 徒歩 10分

備考

保証会社
加入要(保証会社名:株式会社グローバルトラストネットワークス) 保証会社利用料:初回保証料 月額総賃料の30%〜100%(最低保証料 20,000円〜) + 年間保証料(10,000円)もしくは月間保証料(1,000円〜)
情報提供元
株式会社グローバルトラストネットワークス 新大久保支店 取引態様:媒介 〒169-0072 東京都新宿区大久保1-15-15 AKIYAMA BLD 2階 宅地建物取引業 国土交通大臣(2)第9148号 (公社)東京都宅地建物取引業協会 会員 (公財)日本賃貸住宅管理協会 会員 (公社)首都圏不動産公正取引協議会 団体会員
(最終更新日:{date})
2026/03/12
次回更新日
2026/03/20
契約期間
-
お問い合わせ

多言語での応対可能!!

お部屋探しを 依頼してみませんか?

より良い情報を提供できるように、プライバシーポリシーに基づいたCookieの取得と利用に同意をお願いいたします。🍪