(最終更新日:2026年04月01日)

ID :2043871

※お問い合わせ時にこちらのID番号をスタッフにお伝えお願い致します。

1LDK マンション 賃貸 東京都 墨田区メインステージ押上V 0901

Property
Property
Property
Property
Property
Property
Property
Property
Property
Property
Property
Property
Property
Property
Property
Property
Property
Property
Property
Property
Property
Property
Property
Property
Property
Property
Property
Property
Property
Property

賃料・初期費用

174,000

管理費
15,000
敷金
0
礼金
0

物件情報

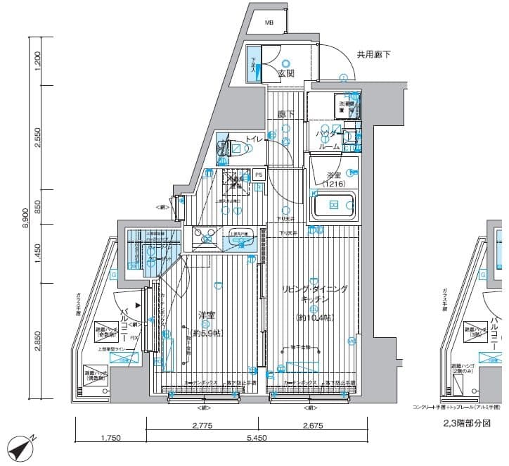
間取り
1LDK
面積
41.3㎡
築年
2018年9月
物件種別
マンション

アクセス

交通

京成押上線 京成曳舟 徒歩7分

東武伊勢崎線 曳舟 徒歩5分

住所
東京都 墨田区 東向島1丁目27-8
0800-111-6663(無料

海外から: +81-3-5155-4671

詳細情報

賃料 管理費
174,000 円 15,000 円
敷金 礼金
0 円 0 円
保証金 敷引金・償却金
0 円 - 円
間取り
1LDK
面積
41.3㎡
築年
2018年9月
9階 / 12階建
向き
-
物件種別
マンション
物件構造
鉄筋コンクリート造
住宅保険
入居可能日
ご相談
こだわり条件
2人入居可/ペット相談/都市ガス/風呂・トイレ別/シャワー有/コンロ2口以上/ウォークインクローゼット/洗濯機置き場(室内)/オートロック/エレベータ有/バルコニー/宅配ボックス/角部屋/TVモニター付きインターホン/温水洗浄便座/24時間ゴミ出し可/独立洗面台/防犯カメラ/インターネット使用料無料/クローゼット・押入れ/シューズインクローゼット/エアコン有
追記事項
-
その他費用
ハウスクリーニング費用(退去時請求):55000 退去時鍵交換費用(契約時請求):29700 AMLクラブサポート費用(契約時請求):16500
備考
-

※ 掲載情報と現状が異なる場合は現状優先といたします。

所在地

住所
東京都 墨田区 東向島1丁目27-8
交通
京成押上線 京成曳舟 徒歩 7分 東武伊勢崎線 曳舟 徒歩 5分

備考

保証会社
加入要(保証会社名:株式会社グローバルトラストネットワークス) 保証会社利用料:初回保証料 月額総賃料の30%〜100%(最低保証料 20,000円〜) + 年間保証料(10,000円)もしくは月間保証料(1,000円〜)
情報提供元
株式会社グローバルトラストネットワークス 新大久保支店 取引態様:媒介 〒169-0072 東京都新宿区大久保1-15-15 AKIYAMA BLD 2階 宅地建物取引業 国土交通大臣(2)第9148号 (公社)東京都宅地建物取引業協会 会員 (公財)日本賃貸住宅管理協会 会員 (公社)首都圏不動産公正取引協議会 団体会員
最終更新日
2026/03/29
次回更新日
2026/04/07
契約期間
-
お問い合わせ

多言語での応対可能!!

お部屋探しを 依頼してみませんか?

より良い情報を提供できるように、プライバシーポリシーに基づいたCookieの取得と利用に同意をお願いいたします。🍪