(最終更新日:2026年04月01日)
☆ネット無料(UCOM光)☆1Fセブンイレブン☆
ID :2046156
※お問い合わせ時にこちらのID番号をスタッフにお伝えお願い致します。
1K マンション 賃貸 東京都 江東区ケーディーエックスレジデンス豊洲 207


































賃料・初期費用
134,000円
管理費
12,000 円
敷金
134,000 円
礼金
268,000 円
物件情報
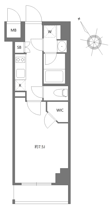
間取り
1K
面積
25.95㎡
築年
2017年7月
物件種別
マンション
アクセス
交通
有楽町線 豊洲 徒歩8分
新交通ゆりかもめ 豊洲 徒歩10分
住所
東京都 江東区 豊洲1丁目2-33
0800-111-6663(無料)
海外から: +81-3-5155-4671
詳細情報
賃料
管理費
134,000 円
12,000 円
敷金
礼金
134,000 円
268,000 円
保証金
敷引金・償却金
0 円
- 円
間取り
1K
面積
25.95㎡
築年
2017年7月
階
2階 / 8階建
向き
南西
物件種別
マンション
物件構造
鉄筋コンクリート造
住宅保険
要
入居可能日
ご相談
こだわり条件
定期借家権有/都市ガス/風呂・トイレ別/シャワー有/コンロ2口以上/ウォークインクローゼット/洗濯機置き場(室内)/オートロック/エレベータ有/バルコニー/フローリング/宅配ボックス/駐輪場/バイク置き場/TVモニター付きインターホン/温水洗浄便座/浴室乾燥機/独立洗面台/防犯カメラ/インターネット使用料無料/クローゼット・押入れ/シューズインクローゼット/エアコン有
追記事項
-
その他費用
プレミアデスク(税込/2年):22000
備考
■短期解約違約金:1年未満2カ月 ■解約予告:2カ月前 ■プレミアデスク代の中に登録料6600円(税込)を含みます。 ■床色:1〜3F「ナチュラル」4〜6F「ダークブラウン」7〜8F「ホワイト」 ■本物件は電子契約となります。 ※写真は参考となりますのでご注意ください。 ■再契約手数料:新賃料の1.5ヶ月 ※本物件は定期借家契約です。(大手法人相談可) 再契約は貸主借主の合意に限り再契約相談可能とする。 再契
※ 掲載情報と現状が異なる場合は現状優先といたします。
所在地
住所
東京都 江東区 豊洲1丁目2-33
交通
有楽町線 豊洲 徒歩 8分
新交通ゆりかもめ 豊洲 徒歩 10分
備考
保証会社
加入要(保証会社名:株式会社グローバルトラストネットワークス)
保証会社利用料:初回保証料
月額総賃料の30%〜100%(最低保証料 20,000円〜)
+ 年間保証料(10,000円)もしくは月間保証料(1,000円〜)
情報提供元
株式会社グローバルトラストネットワークス 新大久保支店
取引態様:媒介
〒169-0072 東京都新宿区大久保1-15-15 AKIYAMA BLD 2階
宅地建物取引業 国土交通大臣(2)第9148号
(公社)東京都宅地建物取引業協会 会員
(公財)日本賃貸住宅管理協会 会員
(公社)首都圏不動産公正取引協議会 団体会員
最終更新日
2026/03/31
次回更新日
2026/04/14
契約期間
定期借家 24ヶ月
0800-111-6663(無料)
海外から: +81-3-5155-4671




