(Última atualização: 2026年05月09日)
ID :1940489
*Por favor, diga-nos este número de identificação se você estiver fazendo alguma consulta.
1K Apartamento padrão Alugar apartamento Aichi Nagoya-shi Nakagawa-kuCREST TAPP金山 1205










































Aluguel/custo inicial
67,700Yen
Taxa de manutenção
20,000 Yen
Depósito
0 Yen
Dinheiro chave
0 Yen
Custo inicial
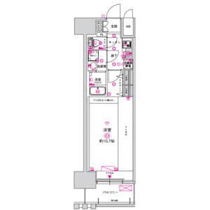
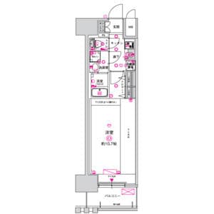
Tipo de sala
1K
Área
29.97㎡
Data de arquitetura
2025/8/
tipo de construção
Apartamento padrão
Acesso
Transporte
Tokaido Line Kanayama Walk9min
Nagoya Municipal Subway Meijo Line Kanayama Walk9min
Endereço
Aichi Nagoya-shi Nakagawa-ku 愛知県名古屋市中川区八熊1丁目5-10
0800-111-6663(gratuito)
Do exterior: +81-3-5155-4671
Informações detalhadas
Aluguel
Taxa de manutenção
67,700 Yen
20,000 Yen
Depósito
Dinheiro chave
0 Yen
0 Yen
Depósito de garantia
Depósito de garantia não reembolsável
0 Yen
- Yen
Tipo de sala
1K
Área
29.97㎡
Data de arquitetura
2025/8/
Andar
12Andar / 15Prédio de andares
Direção
south
tipo de construção
Apartamento padrão
Tipo de estrutura
Concreto armado
Seguro residencial
Required
Data de Ocupação
Imóvel disponível para ocupação
Critério de busca
Não permitido animais/Gás municipal/Chuveiro e banheiro separado/Fogão de mais de 2 bocas/Espaço de armazenamento de máquina de lavar roupa disponível/Fechadura eletrônica/Elevador/Sacada/Caixa Postal/Apartamento de canto/Interfone c/ camera/Privada com jato de água quente/Banheiro c/ secador de roupas /Câmera de segurança/Internet ilimitado/Tem ar condicionado
Nota
-
Outras despesas
契約事務手数料(契約時):11000
更新事務手数料(更新時):11000
エアコンクリーニング(退去時):16500
Observações
ペット飼育時、1匹につき敷金1ヶ月(小型犬・猫 合計2匹まで) ★キャンペーン★ 当月分日割り・翌月分の家賃+管理費無料!!(24H駆けつけサービスは対象外) 2026.5.9以降の申込分対象 契約者へAmazonギフト券20,000円進呈(諸条件あり) 詳細は別途資料を確認下さい。 駐輪場・駐車場等の空き確認や金額については「募集図面」から建物管理会社様へご連絡お願いいたします。 ※内
※ Se as informações publicadas forem diferentes do status atual, damos prioridade ao status atual.
localização
Endereço
Aichi Nagoya-shi Nakagawa-ku 愛知県名古屋市中川区八熊1丁目5-10
Transporte
Tokaido Line Kanayama Walk 9min
Nagoya Municipal Subway Meijo Line Kanayama Walk 9min
Observações
Empresa fiadora
Assinatura necessária (nome da empresa de garantia: Global Trust Networks Co. Ltd.)
Garantia Empresa Taxa de utilização: Taxa de garantia inicial de 30% a 100% da renda total mensal (taxa mínima de garantia de 20,000 ienes ~)
+ Taxa de garantia anual (10.000 ienes) ou Taxa de garantia mensal (1.000 ienes ~)
Fonte de informações
Global Trust Networks Co.,Ltd.
Shin-Okubo Branch
AKIYAMA BLD. 2nd Floor
1-15-15 Okubo, Shinjuku-ku, Tokyo 169-0072 Japan
Member of THE TOKYO REAL ESTATE PUBLIC INTEREST INCORPORATED ASSOCIATION
Member of JAPAN PROPERTY MANAGEMENT ASSOCIATION
Group member of REAL ESTATE FAIR TRADE COUNCIL
Última atualização
2026/05/08
Próxima data de atualização
2026/05/15
Período do contrato
-
0800-111-6663(gratuito)
Do exterior: +81-3-5155-4671
