(Cập nhật lần cuối: 2025年12月13日)
ID :1413823
※Vui lòng cho nhân viên biết số ID này khi được yêu cầu.
4LDK nhà riêng Tòa nhà cho thuê Kyoto Nagaokakyoshi久貝貸家 1






















Giá thuê/chi phí ban đầu
128,000Yen
Phí quản lý
- Yen
Tiền đặt cọc
128,000 Yen
Tiền lễ
128,000 Yen
Thông tin tài sản
Không gian
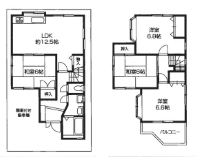
4LDK
Diện tích
85.72㎡
Năm xây dựng
1999năm2Cho đến
Loại căn hộ
nhà riêng
Thông tin vị trí
Giao thông
Tokaido Line Nagaokakyo đi bộ 19phút
Hankyu Kyoto Main Line Nagaoka-Tenjin đi bộ 27phút
Địa chỉ
Kyoto Nagaokakyoshi 久貝2丁目3-24
0800-111-6663(Miễn phí)
Từ nước ngoài: +81-3-5155-4671
Thông tin cụ thể
Tiền thuê
Phí quản lý
128,000 Yen
- Yen
Tiền đặt cọc
Tiền lễ
128,000 Yen
128,000 Yen
Tiền bảo lãnh
Tiền cọc không hoàn lại
- Yen
- Yen
Không gian
4LDK
Diện tích
85.72㎡
Năm xây dựng
1999năm2Cho đến
Tầng thứ
2Tầng thứ / 2Tầng
Hướng nhà
-
Loại căn hộ
nhà riêng
Kết cấu
nhà gỗ
Bảo hiểm nhà ở
Cần
Có thể chuyển vào luôn
Có thể chuyển vào luôn
Điều kiện
Có thể 2 người ở/Gas thành phố/Phòng tắm và toilet riêng biệt/Vòi hoa sen/Bếp 2 chỗ trở lên/Chỗ để máy giặt(Trong nhà)/Sàn ván gỗ/Chuông cửa màn hình/Có máy sấy khô trong phòng tắm/Có bồn rửa mặt riêng/Tủ chứa đồ/Tủ để giày
Bản ghi nhớ
-
Tham khảo
-
※ Trong trường hợp thông tin đã đăng và tình trạng thực tế khác nhau, chúng tôi sẽ ưu tiên tình trạng thực tế
vị trí
Địa chỉ
Kyoto Nagaokakyoshi 久貝2丁目3-24
Giao thông
Tokaido Line Nagaokakyo đi bộ 19phút
Hankyu Kyoto Main Line Nagaoka-Tenjin đi bộ 27phút
Tham khảo
Công ty bảo lãnh
Bắt buộc tham gia(Công ty bảo lãnh:Công ty bảo lãnh Global Trust Networks)
Phí sử dụng công ty bảo lãnh:Phí bảo lãnh lần đầu Bằng 30%~100% tổng tiền nhà(Phí bảo lãnh thấp nhất 20,000 yên~)
+ Phí bảo lãnh hằng năm(10,000 yên)hoặc phí bảo lãnh theo tháng(1,000yên~)
Nguồn cung cấp thông tin
Global Trust Networks Co.,Ltd.
Chi nhánh Shin-Okubo
〒 169 - 0072
Tầng 2 AKIYAMA BLD 1-15-15, Okubo, Shinjuku-ku, Tokyo
Member of THE TOKYO REAL ESTATE PUBLIC INTEREST INCORPORATED ASSOCIATION
Member of JAPAN PROPERTY MANAGEMENT ASSOCIATION
Group member of REAL ESTATE FAIR TRADE COUNCIL
(Cập nhật lần cuối: {date})
2025/12/13
Ngày cập nhật tiếp theo
2025/12/20
Thời hạn hợp đồng
-
0800-111-6663(Miễn phí)
Từ nước ngoài: +81-3-5155-4671