Cập nhật ngày tháng
ペット可(小型犬または猫1匹まで)!! ネット無料(cims利用時)!!
ID :1745908
※Vui lòng cho nhân viên biết số ID này khi được yêu cầu.
1R chung cư Tòa nhà cho thuê Tokyo shibuya-kuプレミアムキューブ元代々木 201




























































Giá thuê/chi phí ban đầu
133,000Yen
Phí quản lý
12,000 Yen
Tiền đặt cọc
133,000 Yen
Tiền lễ
133,000 Yen
Thông tin tài sản
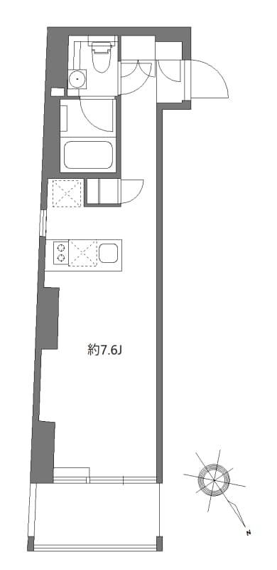
Không gian
1R
Diện tích
27.15㎡
Năm xây dựng
2011năm1Cho đến
Loại căn hộ
chung cư
Thông tin vị trí
Giao thông
Odakyu Odawara Line Yoyogi-Hachiman đi bộ 9phút
Chiyoda Line Yoyogi-Uehara đi bộ 10phút
Địa chỉ
Tokyo shibuya-ku 元代々木町48-14
0800-111-6663(Miễn phí)
Từ nước ngoài: +81-3-5155-4671
Thông tin cụ thể
Tiền thuê
Phí quản lý
133,000 Yen
12,000 Yen
Tiền đặt cọc
Tiền lễ
133,000 Yen
133,000 Yen
Tiền bảo lãnh
Tiền cọc không hoàn lại
- Yen
- Yen
Không gian
1R
Diện tích
27.15㎡
Năm xây dựng
2011năm1Cho đến
Tầng thứ
2Tầng thứ / 7Tầng
Hướng nhà
đông bắc
Loại căn hộ
chung cư
Kết cấu
lõi thép chống ồn
Bảo hiểm nhà ở
Cần
Có thể chuyển vào luôn
Tư vấn
Điều kiện
Cho nuôi thú cưng/Gas thành phố/Phòng tắm và toilet riêng biệt/Vòi hoa sen/Bếp 2 chỗ trở lên/Có điều hòa/Chỗ để máy giặt(Trong nhà)/Khóa tự động Auto lock/Thang máy/Ban công/Sàn ván gỗ/Thùng nhận chuyển phát/Có bãi đỗ xe đạp/Có chỗ để xe máy/Phòng góc/Chuông cửa màn hình/Có bệt rửa tự động/Nhà thiết kế riêng/Có máy sấy khô trong phòng tắm/Có thể vứt rác 24 giờ/Có bồn rửa mặt riêng/Camera chống trộm/Sử dụng Internet miễn phí/Tủ chứa đồ/Tủ để giày
Bản ghi nhớ
-
Tham khảo
■短期解約違約金:1年未満2カ月 ■解約予告:2カ月前 ■プレミアデスク代の中に登録料4400円(税込)を含みます。 ■PET飼育時 礼金+1ヶ月 ■駐輪場等の共用部については【共用管理】まで直接問合せ下さい。 ■本物件は電子契約となります。
※ Trong trường hợp thông tin đã đăng và tình trạng thực tế khác nhau, chúng tôi sẽ ưu tiên tình trạng thực tế
Địa chỉ
Tokyo shibuya-ku 元代々木町48-14
Giao thông
Odakyu Odawara Line Yoyogi-Hachiman đi bộ 9phút
Chiyoda Line Yoyogi-Uehara đi bộ 10phút
Tham khảo
Công ty bảo lãnh
Bắt buộc tham gia(Công ty bảo lãnh:Công ty bảo lãnh Global Trust Networks)
Phí sử dụng công ty bảo lãnh:Phí bảo lãnh lần đầu Bằng 30%~100% tổng tiền nhà(Phí bảo lãnh thấp nhất 20,000 yên~)
+ Phí bảo lãnh hằng năm(10,000 yên)hoặc phí bảo lãnh theo tháng(1,000yên~)
Nguồn cung cấp thông tin
Global Trust Networks Co.,Ltd.
Chi nhánh Shin-Okubo
〒 169 - 0072
Tầng 2 AKIYAMA BLD 1-15-15, Okubo, Shinjuku-ku, Tokyo
Member of THE TOKYO REAL ESTATE PUBLIC INTEREST INCORPORATED ASSOCIATION
Member of JAPAN PROPERTY MANAGEMENT ASSOCIATION
Group member of REAL ESTATE FAIR TRADE COUNCIL
Cập nhật ngày tháng
2025/09/22
Ngày cập nhật tiếp theo
2025/09/30
Thời hạn hợp đồng
-
0800-111-6663(Miễn phí)
Từ nước ngoài: +81-3-5155-4671