Cập nhật ngày tháng
ID :1856448
※Vui lòng cho nhân viên biết số ID này khi được yêu cầu.
1K chung cư Tòa nhà cho thuê Kyoto Kyotoshi Nakagyo-kuクレストタップ京都丹波口 403
































Giá thuê/chi phí ban đầu
73,300Yen
Phí quản lý
10,000 Yen
Tiền đặt cọc
0 Yen
Tiền lễ
0 Yen
Thông tin tài sản
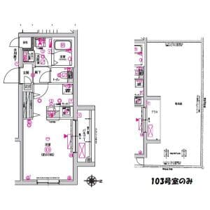
Không gian
1K
Diện tích
25.11㎡
Năm xây dựng
2025năm10Cho đến
Loại căn hộ
chung cư
Thông tin vị trí
Giao thông
Sanin Main Line Tanbaguchi đi bộ 8phút
Hankyu Kyoto Main Line Omiya đi bộ 13phút
Địa chỉ
Kyoto Kyotoshi Nakagyo-ku 京都府京都市中京区壬生松原町49-4
0800-111-6663(Miễn phí)
Từ nước ngoài: +81-3-5155-4671
Thông tin cụ thể
Tiền thuê
Phí quản lý
73,300 Yen
10,000 Yen
Tiền đặt cọc
Tiền lễ
0 Yen
0 Yen
Tiền bảo lãnh
Tiền cọc không hoàn lại
0 Yen
- Yen
Không gian
1K
Diện tích
25.11㎡
Năm xây dựng
2025năm10Cho đến
Tầng thứ
4Tầng thứ / 5Tầng
Hướng nhà
nam
Loại căn hộ
chung cư
Kết cấu
lõi thép chống ồn
Bảo hiểm nhà ở
Cần
Có thể chuyển vào luôn
Có thể chuyển vào luôn
Điều kiện
Có thể 2 người ở/Thương lượng nuôi thú cưng/Phòng tắm và toilet riêng biệt/Có chỗ để máy giặt/Khóa tự động Auto lock/Thang máy/Ban công/Thùng nhận chuyển phát/Có bãi đỗ xe đạp/Có máy sấy khô trong phòng tắm/Camera chống trộm/Sử dụng Internet miễn phí/Có điều hòa
Bản ghi nhớ
-
Tham khảo
-
※ Trong trường hợp thông tin đã đăng và tình trạng thực tế khác nhau, chúng tôi sẽ ưu tiên tình trạng thực tế
vị trí
Địa chỉ
Kyoto Kyotoshi Nakagyo-ku 京都府京都市中京区壬生松原町49-4
Giao thông
Sanin Main Line Tanbaguchi đi bộ 8phút
Hankyu Kyoto Main Line Omiya đi bộ 13phút
Tham khảo
Công ty bảo lãnh
Bắt buộc tham gia(Công ty bảo lãnh:Công ty bảo lãnh Global Trust Networks)
Phí sử dụng công ty bảo lãnh:Phí bảo lãnh lần đầu Bằng 30%~100% tổng tiền nhà(Phí bảo lãnh thấp nhất 20,000 yên~)
+ Phí bảo lãnh hằng năm(10,000 yên)hoặc phí bảo lãnh theo tháng(1,000yên~)
Nguồn cung cấp thông tin
Global Trust Networks Co.,Ltd.
Chi nhánh Shin-Okubo
〒 169 - 0072
Tầng 2 AKIYAMA BLD 1-15-15, Okubo, Shinjuku-ku, Tokyo
Member of THE TOKYO REAL ESTATE PUBLIC INTEREST INCORPORATED ASSOCIATION
Member of JAPAN PROPERTY MANAGEMENT ASSOCIATION
Group member of REAL ESTATE FAIR TRADE COUNCIL
Cập nhật ngày tháng
2025/11/26
Ngày cập nhật tiếp theo
2025/12/03
Thời hạn hợp đồng
-
0800-111-6663(Miễn phí)
Từ nước ngoài: +81-3-5155-4671









