Cập nhật ngày tháng
ID :1878513
※Vui lòng cho nhân viên biết số ID này khi được yêu cầu.
1K chung cư Tòa nhà cho thuê Tokyo Machida-shiレーヴ町田V.A 1101












































Giá thuê/chi phí ban đầu
76,000Yen
Phí quản lý
15,000 Yen
Tiền đặt cọc
0 Yen
Tiền lễ
152,000 Yen
Thông tin tài sản
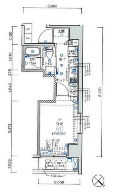
Không gian
1K
Diện tích
20.96㎡
Năm xây dựng
2018năm8Cho đến
Loại căn hộ
chung cư
Thông tin vị trí
Giao thông
Odakyu Odawara Line Machida đi bộ 8phút
Odakyu Odawara Line Sagami-Ono đi bộ 26phút
Địa chỉ
Tokyo Machida-shi 原町田2丁目6-7
0800-111-6663(Miễn phí)
Từ nước ngoài: +81-3-5155-4671
Thông tin cụ thể
Tiền thuê
Phí quản lý
76,000 Yen
15,000 Yen
Tiền đặt cọc
Tiền lễ
0 Yen
152,000 Yen
Tiền bảo lãnh
Tiền cọc không hoàn lại
- Yen
- Yen
Không gian
1K
Diện tích
20.96㎡
Năm xây dựng
2018năm8Cho đến
Tầng thứ
11Tầng thứ / 13Tầng
Hướng nhà
đông bắc
Loại căn hộ
chung cư
Kết cấu
lõi thép chống ồn
Bảo hiểm nhà ở
Cần
Có thể chuyển vào luôn
2026-2-Đầu tháng
Điều kiện
Thương lượng nuôi thú cưng/Gas thành phố/Phòng tắm và toilet riêng biệt/Vòi hoa sen/Bếp 2 chỗ trở lên/Chỗ để máy giặt(Trong nhà)/Khóa tự động Auto lock/Ban công/Sàn ván gỗ/Thùng nhận chuyển phát/Có Internet(Cáp quang)/Phòng góc/Chuông cửa màn hình/Có bệt rửa tự động/Có máy sấy khô trong phòng tắm/Có bồn rửa mặt riêng/Camera chống trộm/Sử dụng Internet miễn phí/Tủ chứa đồ/Tủ để giày/Có điều hòa
Bản ghi nhớ
-
Tham khảo
【駐車場 月額20000円】【バイク駐輪 月額2000円】【駐輪場 月額500円】【ペット:小型犬又は猫1匹まで可】【インターネットギガプライズ・無線LAN有り】
※ Trong trường hợp thông tin đã đăng và tình trạng thực tế khác nhau, chúng tôi sẽ ưu tiên tình trạng thực tế
vị trí
Địa chỉ
Tokyo Machida-shi 原町田2丁目6-7
Giao thông
Odakyu Odawara Line Machida đi bộ 8phút
Odakyu Odawara Line Sagami-Ono đi bộ 26phút
Tham khảo
Công ty bảo lãnh
Bắt buộc tham gia(Công ty bảo lãnh:Công ty bảo lãnh Global Trust Networks)
Phí sử dụng công ty bảo lãnh:Phí bảo lãnh lần đầu Bằng 30%~100% tổng tiền nhà(Phí bảo lãnh thấp nhất 20,000 yên~)
+ Phí bảo lãnh hằng năm(10,000 yên)hoặc phí bảo lãnh theo tháng(1,000yên~)
Nguồn cung cấp thông tin
Global Trust Networks Co.,Ltd.
Chi nhánh Shin-Okubo
〒 169 - 0072
Tầng 2 AKIYAMA BLD 1-15-15, Okubo, Shinjuku-ku, Tokyo
Member of THE TOKYO REAL ESTATE PUBLIC INTEREST INCORPORATED ASSOCIATION
Member of JAPAN PROPERTY MANAGEMENT ASSOCIATION
Group member of REAL ESTATE FAIR TRADE COUNCIL
Cập nhật ngày tháng
2025/12/08
Ngày cập nhật tiếp theo
2025/12/15
Thời hạn hợp đồng
-
0800-111-6663(Miễn phí)
Từ nước ngoài: +81-3-5155-4671