Cập nhật ngày tháng
ID :1886039
※Vui lòng cho nhân viên biết số ID này khi được yêu cầu.
1K chung cư Tòa nhà cho thuê Tokyo Setagaya-kuルーブル世田谷 308号室










Giá thuê/chi phí ban đầu
87,000Yen
Phí quản lý
5,000 Yen
Tiền đặt cọc
0 Yen
Tiền lễ
87,000 Yen
Thông tin tài sản
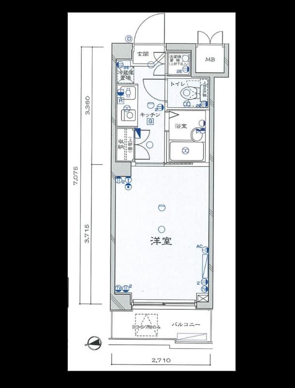
Không gian
1K
Diện tích
19.17㎡
Năm xây dựng
1999năm6Cho đến
Loại căn hộ
chung cư
Thông tin vị trí
Giao thông
Yamanote Line Ueno đi bộ 2phút
Tokyu Setagaya Line Setagaya đi bộ 6phút
Địa chỉ
Tokyo Setagaya-ku 世田谷3丁目11-14
0800-111-6663(Miễn phí)
Từ nước ngoài: +81-3-5155-4671
Thông tin cụ thể
Tiền thuê
Phí quản lý
87,000 Yen
5,000 Yen
Tiền đặt cọc
Tiền lễ
0 Yen
87,000 Yen
Tiền bảo lãnh
Tiền cọc không hoàn lại
- Yen
- Yen
Không gian
1K
Diện tích
19.17㎡
Năm xây dựng
1999năm6Cho đến
Tầng thứ
3Tầng thứ / 7Tầng
Hướng nhà
tây bắc
Loại căn hộ
chung cư
Kết cấu
lõi thép chống ồn
Bảo hiểm nhà ở
Cần
Có thể chuyển vào luôn
2026-2-Giữa tháng
Điều kiện
Gas thành phố/Phòng tắm và toilet riêng biệt/Chỗ để máy giặt(Trong nhà)/Khóa tự động Auto lock/Sàn ván gỗ/Tủ để giày/Có điều hòa
Bản ghi nhớ
-
Tham khảo
・個人申込の場合、「電子契約くん」でご契約いただきます。・お問い合わせについては、物件検索後の各項目の下記に記載しております【賃貸仲介様向けFAQサイト】にアクセスし、ご確認ください。
※ Trong trường hợp thông tin đã đăng và tình trạng thực tế khác nhau, chúng tôi sẽ ưu tiên tình trạng thực tế
Địa chỉ
Tokyo Setagaya-ku 世田谷3丁目11-14
Giao thông
Yamanote Line Ueno đi bộ 2phút
Tokyu Setagaya Line Setagaya đi bộ 6phút
Tham khảo
Công ty bảo lãnh
Bắt buộc tham gia(Công ty bảo lãnh:Công ty bảo lãnh Global Trust Networks)
Phí sử dụng công ty bảo lãnh:Phí bảo lãnh lần đầu Bằng 30%~100% tổng tiền nhà(Phí bảo lãnh thấp nhất 20,000 yên~)
+ Phí bảo lãnh hằng năm(10,000 yên)hoặc phí bảo lãnh theo tháng(1,000yên~)
Nguồn cung cấp thông tin
Global Trust Networks Co.,Ltd.
Chi nhánh Shin-Okubo
〒 169 - 0072
Tầng 2 AKIYAMA BLD 1-15-15, Okubo, Shinjuku-ku, Tokyo
Member of THE TOKYO REAL ESTATE PUBLIC INTEREST INCORPORATED ASSOCIATION
Member of JAPAN PROPERTY MANAGEMENT ASSOCIATION
Group member of REAL ESTATE FAIR TRADE COUNCIL
Cập nhật ngày tháng
2025/12/07
Ngày cập nhật tiếp theo
2025/12/14
Thời hạn hợp đồng
-
0800-111-6663(Miễn phí)
Từ nước ngoài: +81-3-5155-4671