(Cập nhật lần cuối: 2025年12月11日)
ID :1886560
※Vui lòng cho nhân viên biết số ID này khi được yêu cầu.
1K chung cư Tòa nhà cho thuê Osaka Osakashi Naniwa-kuエグゼ難波南 306
























Giá thuê/chi phí ban đầu
59,000Yen
Phí quản lý
6,000 Yen
Tiền đặt cọc
0 Yen
Tiền lễ
0 Yen
Thông tin tài sản
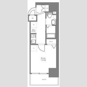
Không gian
1K
Diện tích
22.5㎡
Năm xây dựng
2014năm8Cho đến
Loại căn hộ
chung cư
Thông tin vị trí
Giao thông
Yotsubashi Line Daikokucho đi bộ 3phút
Midosuji Line Daikokucho đi bộ 3phút
Địa chỉ
Osaka Osakashi Naniwa-ku 大阪府大阪市浪速区戎本町1丁目8-9
0800-111-6663(Miễn phí)
Từ nước ngoài: +81-3-5155-4671
Thông tin cụ thể
Tiền thuê
Phí quản lý
59,000 Yen
6,000 Yen
Tiền đặt cọc
Tiền lễ
0 Yen
0 Yen
Tiền bảo lãnh
Tiền cọc không hoàn lại
0 Yen
- Yen
Không gian
1K
Diện tích
22.5㎡
Năm xây dựng
2014năm8Cho đến
Tầng thứ
3Tầng thứ / 9Tầng
Hướng nhà
không xác định
Loại căn hộ
chung cư
Kết cấu
lõi thép chống ồn
Bảo hiểm nhà ở
Cần
Có thể chuyển vào luôn
Tư vấn
Điều kiện
Thương lượng nuôi thú cưng/Phòng tắm và toilet riêng biệt/Chỗ để máy giặt(Trong nhà)/Khóa tự động Auto lock/Thang máy/Ban công/Thùng nhận chuyển phát/Có bệt rửa tự động/Có máy sấy khô trong phòng tắm/Camera chống trộm/Có điều hòa
Bản ghi nhớ
-
Tham khảo
-
※ Trong trường hợp thông tin đã đăng và tình trạng thực tế khác nhau, chúng tôi sẽ ưu tiên tình trạng thực tế
vị trí
Địa chỉ
Osaka Osakashi Naniwa-ku 大阪府大阪市浪速区戎本町1丁目8-9
Giao thông
Yotsubashi Line Daikokucho đi bộ 3phút
Midosuji Line Daikokucho đi bộ 3phút
Tham khảo
Công ty bảo lãnh
Bắt buộc tham gia(Công ty bảo lãnh:Công ty bảo lãnh Global Trust Networks)
Phí sử dụng công ty bảo lãnh:Phí bảo lãnh lần đầu Bằng 30%~100% tổng tiền nhà(Phí bảo lãnh thấp nhất 20,000 yên~)
+ Phí bảo lãnh hằng năm(10,000 yên)hoặc phí bảo lãnh theo tháng(1,000yên~)
Nguồn cung cấp thông tin
Global Trust Networks Co.,Ltd.
Chi nhánh Shin-Okubo
〒 169 - 0072
Tầng 2 AKIYAMA BLD 1-15-15, Okubo, Shinjuku-ku, Tokyo
Member of THE TOKYO REAL ESTATE PUBLIC INTEREST INCORPORATED ASSOCIATION
Member of JAPAN PROPERTY MANAGEMENT ASSOCIATION
Group member of REAL ESTATE FAIR TRADE COUNCIL
(Cập nhật lần cuối: {date})
2025/12/10
Ngày cập nhật tiếp theo
2025/12/17
Thời hạn hợp đồng
-
0800-111-6663(Miễn phí)
Từ nước ngoài: +81-3-5155-4671

