(Cập nhật lần cuối: 2025年12月22日)
☆3駅利用可能☆ ☆人気の角部屋☆
ID :1905950
※Vui lòng cho nhân viên biết số ID này khi được yêu cầu.
1K chung cư Tòa nhà cho thuê Tokyo Sumida-kuアリカ向島 501






























Giá thuê/chi phí ban đầu
97,000Yen
Phí quản lý
10,000 Yen
Tiền đặt cọc
0 Yen
Tiền lễ
0 Yen
Thông tin tài sản
Không gian
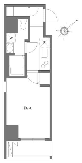
1K
Diện tích
25㎡
Năm xây dựng
2018năm3Cho đến
Loại căn hộ
chung cư
Thông tin vị trí
Giao thông
Hanzomon Line Oshiage đi bộ 9phút
Tobu Isesaki Line Hikifune đi bộ 9phút
Địa chỉ
Tokyo Sumida-ku 向島5丁目33-5
0800-111-6663(Miễn phí)
Từ nước ngoài: +81-3-5155-4671
Thông tin cụ thể
Tiền thuê
Phí quản lý
97,000 Yen
10,000 Yen
Tiền đặt cọc
Tiền lễ
0 Yen
0 Yen
Tiền bảo lãnh
Tiền cọc không hoàn lại
- Yen
- Yen
Không gian
1K
Diện tích
25㎡
Năm xây dựng
2018năm3Cho đến
Tầng thứ
5Tầng thứ / 12Tầng
Hướng nhà
miền đông nam
Loại căn hộ
chung cư
Kết cấu
lõi thép chống ồn
Bảo hiểm nhà ở
Cần
Có thể chuyển vào luôn
Tư vấn
Điều kiện
Gas thành phố/Phòng tắm và toilet riêng biệt/Vòi hoa sen/Bếp 2 chỗ trở lên/Chỗ để máy giặt(Trong nhà)/Khóa tự động Auto lock/Thang máy/Sàn ván gỗ/Thùng nhận chuyển phát/Có bãi đỗ xe đạp/Có chỗ để xe máy/Phòng góc/Chuông cửa màn hình/Có bệt rửa tự động/Có máy sấy khô trong phòng tắm/Có bồn rửa mặt riêng/Camera chống trộm/Tủ chứa đồ/Tủ để giày/Có điều hòa
Bản ghi nhớ
-
Tham khảo
■短期解約違約金:1年未満1カ月 ■解約予告:2カ月前 ■プレミアデスク代の中に登録料6600円(税込)を含みます。 ■大手法人契約時【+礼1】で諸条件ご相談可 ■バイク置場は原付のみとなります。 ■町会費 7200円(2年分一括払)※途中解約返金無 ■本物件は電子契約となります。 ※写真は参考となりますのでご注意ください。
※ Trong trường hợp thông tin đã đăng và tình trạng thực tế khác nhau, chúng tôi sẽ ưu tiên tình trạng thực tế
Địa chỉ
Tokyo Sumida-ku 向島5丁目33-5
Giao thông
Hanzomon Line Oshiage đi bộ 9phút
Tobu Isesaki Line Hikifune đi bộ 9phút
Tham khảo
Công ty bảo lãnh
Bắt buộc tham gia(Công ty bảo lãnh:Công ty bảo lãnh Global Trust Networks)
Phí sử dụng công ty bảo lãnh:Phí bảo lãnh lần đầu Bằng 30%~100% tổng tiền nhà(Phí bảo lãnh thấp nhất 20,000 yên~)
+ Phí bảo lãnh hằng năm(10,000 yên)hoặc phí bảo lãnh theo tháng(1,000yên~)
Nguồn cung cấp thông tin
Global Trust Networks Co.,Ltd.
Chi nhánh Shin-Okubo
〒 169 - 0072
Tầng 2 AKIYAMA BLD 1-15-15, Okubo, Shinjuku-ku, Tokyo
Member of THE TOKYO REAL ESTATE PUBLIC INTEREST INCORPORATED ASSOCIATION
Member of JAPAN PROPERTY MANAGEMENT ASSOCIATION
Group member of REAL ESTATE FAIR TRADE COUNCIL
(Cập nhật lần cuối: {date})
2025/12/21
Ngày cập nhật tiếp theo
2026/01/04
Thời hạn hợp đồng
-
0800-111-6663(Miễn phí)
Từ nước ngoài: +81-3-5155-4671






