(Cập nhật lần cuối: 2026年01月11日)
ID :1923099
※Vui lòng cho nhân viên biết số ID này khi được yêu cầu.
1LDK chung cư Tòa nhà cho thuê Tokyo Taito-kuメインステージ入谷II 0402






















Giá thuê/chi phí ban đầu
168,000Yen
Phí quản lý
15,000 Yen
Tiền đặt cọc
0 Yen
Tiền lễ
168,000 Yen
Thông tin tài sản
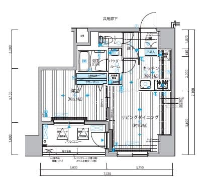
Không gian
1LDK
Diện tích
42.36㎡
Năm xây dựng
2020năm2Cho đến
Loại căn hộ
chung cư
Thông tin vị trí
Giao thông
Hibiya Line Iriya đi bộ 4phút
Hibiya Line Minowa đi bộ 10phút
Địa chỉ
Tokyo Taito-ku 竜泉1丁目13-2
0800-111-6663(Miễn phí)
Từ nước ngoài: +81-3-5155-4671
Thông tin cụ thể
Tiền thuê
Phí quản lý
168,000 Yen
15,000 Yen
Tiền đặt cọc
Tiền lễ
0 Yen
168,000 Yen
Tiền bảo lãnh
Tiền cọc không hoàn lại
0 Yen
- Yen
Không gian
1LDK
Diện tích
42.36㎡
Năm xây dựng
2020năm2Cho đến
Tầng thứ
4Tầng thứ / 15Tầng
Hướng nhà
tây nam
Loại căn hộ
chung cư
Kết cấu
lõi thép chống ồn
Bảo hiểm nhà ở
Cần
Có thể chuyển vào luôn
Tư vấn
Điều kiện
Có thể 2 người ở/Thương lượng nuôi thú cưng/Gas thành phố/Phòng tắm và toilet riêng biệt/Vòi hoa sen/Bếp 2 chỗ trở lên/Chỗ để máy giặt(Trong nhà)/Khóa tự động Auto lock/Thang máy/Ban công/Thùng nhận chuyển phát/Có Internet(Cáp quang)/Chuông cửa màn hình/Có bệt rửa tự động/Cấu trúc chống động đất/Có thể vứt rác 24 giờ/Có bồn rửa mặt riêng/Camera chống trộm/Sử dụng Internet miễn phí/Tủ chứa đồ/Tủ để giày/Có điều hòa
Bản ghi nhớ
-
Tham khảo
-
※ Trong trường hợp thông tin đã đăng và tình trạng thực tế khác nhau, chúng tôi sẽ ưu tiên tình trạng thực tế
vị trí
Địa chỉ
Tokyo Taito-ku 竜泉1丁目13-2
Giao thông
Hibiya Line Iriya đi bộ 4phút
Hibiya Line Minowa đi bộ 10phút
Tham khảo
Công ty bảo lãnh
Bắt buộc tham gia(Công ty bảo lãnh:Công ty bảo lãnh Global Trust Networks)
Phí sử dụng công ty bảo lãnh:Phí bảo lãnh lần đầu Bằng 30%~100% tổng tiền nhà(Phí bảo lãnh thấp nhất 20,000 yên~)
+ Phí bảo lãnh hằng năm(10,000 yên)hoặc phí bảo lãnh theo tháng(1,000yên~)
Nguồn cung cấp thông tin
Global Trust Networks Co.,Ltd.
Chi nhánh Shin-Okubo
〒 169 - 0072
Tầng 2 AKIYAMA BLD 1-15-15, Okubo, Shinjuku-ku, Tokyo
Member of THE TOKYO REAL ESTATE PUBLIC INTEREST INCORPORATED ASSOCIATION
Member of JAPAN PROPERTY MANAGEMENT ASSOCIATION
Group member of REAL ESTATE FAIR TRADE COUNCIL
(Cập nhật lần cuối: {date})
2026/01/08
Ngày cập nhật tiếp theo
2026/01/17
Thời hạn hợp đồng
-
0800-111-6663(Miễn phí)
Từ nước ngoài: +81-3-5155-4671









