(Cập nhật lần cuối: 2026年01月11日)
ID :1923976
※Vui lòng cho nhân viên biết số ID này khi được yêu cầu.
2SLDK chung cư Tòa nhà cho thuê Kanagawa Yokohamashi Totsuka-kuコーポレート東戸塚 712












































Giá thuê/chi phí ban đầu
140,000Yen
Phí quản lý
10,000 Yen
Tiền đặt cọc
140,000 Yen
Tiền lễ
140,000 Yen
Thông tin tài sản
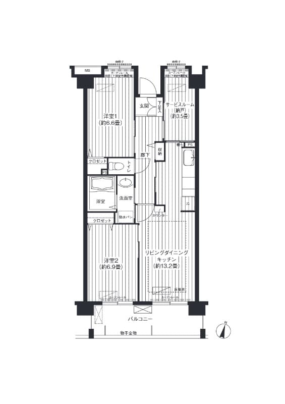
Không gian
2SLDK
Diện tích
65.97㎡
Năm xây dựng
2003năm12Cho đến
Loại căn hộ
chung cư
Thông tin vị trí
Giao thông
Shonan Shinjuku Line Uzu Higashi-Totsuka đi bộ 16phút
Yokosuka Line Higashi-Totsuka đi bộ 16phút
Địa chỉ
Kanagawa Yokohamashi Totsuka-ku 品濃町1835-29
0800-111-6663(Miễn phí)
Từ nước ngoài: +81-3-5155-4671
Thông tin cụ thể
Tiền thuê
Phí quản lý
140,000 Yen
10,000 Yen
Tiền đặt cọc
Tiền lễ
140,000 Yen
140,000 Yen
Tiền bảo lãnh
Tiền cọc không hoàn lại
- Yen
- Yen
Không gian
2SLDK
Diện tích
65.97㎡
Năm xây dựng
2003năm12Cho đến
Tầng thứ
7Tầng thứ / 7Tầng
Hướng nhà
nam
Loại căn hộ
chung cư
Kết cấu
lõi thép chống ồn
Bảo hiểm nhà ở
Cần
Có thể chuyển vào luôn
Tư vấn
Điều kiện
Có thể 2 người ở/Phòng tắm và toilet riêng biệt/Vòi hoa sen/Chức năng hâm nóng nước/Chỗ để máy giặt(Trong nhà)/Khóa tự động Auto lock/Thang máy/Ban công/Sàn ván gỗ/Thùng nhận chuyển phát/Có bãi đỗ xe đạp/Có máy sấy khô trong phòng tắm/Có bồn rửa mặt riêng/Camera chống trộm/Tủ chứa đồ/Tủ để giày
Bản ghi nhớ
-
Tham khảo
内覧予約随時受付中☆ お問い合わせは日商ベックス 代々木店へ♪ 何かお困りな事などありましたらお気軽にご相談ください☆ ご要望にぴったりなお部屋を、一緒にお探しします♪
※ Trong trường hợp thông tin đã đăng và tình trạng thực tế khác nhau, chúng tôi sẽ ưu tiên tình trạng thực tế
vị trí
Địa chỉ
Kanagawa Yokohamashi Totsuka-ku 品濃町1835-29
Giao thông
Shonan Shinjuku Line Uzu Higashi-Totsuka đi bộ 16phút
Yokosuka Line Higashi-Totsuka đi bộ 16phút
Tham khảo
Công ty bảo lãnh
Bắt buộc tham gia(Công ty bảo lãnh:Công ty bảo lãnh Global Trust Networks)
Phí sử dụng công ty bảo lãnh:Phí bảo lãnh lần đầu Bằng 30%~100% tổng tiền nhà(Phí bảo lãnh thấp nhất 20,000 yên~)
+ Phí bảo lãnh hằng năm(10,000 yên)hoặc phí bảo lãnh theo tháng(1,000yên~)
Nguồn cung cấp thông tin
Global Trust Networks Co.,Ltd.
Chi nhánh Shin-Okubo
〒 169 - 0072
Tầng 2 AKIYAMA BLD 1-15-15, Okubo, Shinjuku-ku, Tokyo
Member of THE TOKYO REAL ESTATE PUBLIC INTEREST INCORPORATED ASSOCIATION
Member of JAPAN PROPERTY MANAGEMENT ASSOCIATION
Group member of REAL ESTATE FAIR TRADE COUNCIL
(Cập nhật lần cuối: {date})
2026/01/11
Ngày cập nhật tiếp theo
2026/01/18
Thời hạn hợp đồng
-
0800-111-6663(Miễn phí)
Từ nước ngoài: +81-3-5155-4671
