(Cập nhật lần cuối: 2026年01月29日)
☆新築物件☆ ☆新白岡駅徒歩1分☆
ID :1942400
※Vui lòng cho nhân viên biết số ID này khi được yêu cầu.
1K chung cư Tòa nhà cho thuê Saitama shiraokashiエヌステージジェイアール新白岡駅前 0604






















































Giá thuê/chi phí ban đầu
55,800Yen
Phí quản lý
18,000 Yen
Tiền đặt cọc
0 Yen
Tiền lễ
0 Yen
Thông tin tài sản
Không gian
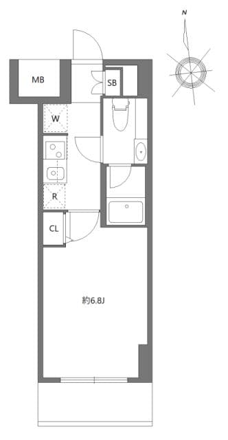
1K
Diện tích
22.48㎡
Năm xây dựng
2025năm3Cho đến
Loại căn hộ
chung cư
Thông tin vị trí
Giao thông
Tohoku Line Shin-Shiraoka đi bộ 1phút
Shonan Shinjuku Line Uzu Shin-Shiraoka đi bộ 1phút
Địa chỉ
Saitama shiraokashi 新白岡8丁目7-1
0800-111-6663(Miễn phí)
Từ nước ngoài: +81-3-5155-4671
Thông tin cụ thể
Tiền thuê
Phí quản lý
55,800 Yen
18,000 Yen
Tiền đặt cọc
Tiền lễ
0 Yen
0 Yen
Tiền bảo lãnh
Tiền cọc không hoàn lại
- Yen
- Yen
Không gian
1K
Diện tích
22.48㎡
Năm xây dựng
2025năm3Cho đến
Tầng thứ
6Tầng thứ / 9Tầng
Hướng nhà
nam
Loại căn hộ
chung cư
Kết cấu
lõi thép chống ồn
Bảo hiểm nhà ở
Cần
Có thể chuyển vào luôn
Có thể chuyển vào luôn
Điều kiện
Gas thành phố/Phòng tắm và toilet riêng biệt/Bếp 2 chỗ trở lên/Khóa tự động Auto lock/Thang máy/Sàn ván gỗ/Thùng nhận chuyển phát/Có bãi đỗ xe đạp/Có chỗ để xe máy/Có bệt rửa tự động/Có máy sấy khô trong phòng tắm/Có bồn rửa mặt riêng/Tủ chứa đồ/Tủ để giày/Có điều hòa
Bản ghi nhớ
-
Tham khảo
■短期解約違約金:1年未満2カ月 ■解約予告:2カ月前 ■プレミアデスク代の中に登録料6600円(税込)を含みます。
※ Trong trường hợp thông tin đã đăng và tình trạng thực tế khác nhau, chúng tôi sẽ ưu tiên tình trạng thực tế
vị trí
Địa chỉ
Saitama shiraokashi 新白岡8丁目7-1
Giao thông
Tohoku Line Shin-Shiraoka đi bộ 1phút
Shonan Shinjuku Line Uzu Shin-Shiraoka đi bộ 1phút
Tham khảo
Công ty bảo lãnh
Bắt buộc tham gia(Công ty bảo lãnh:Công ty bảo lãnh Global Trust Networks)
Phí sử dụng công ty bảo lãnh:Phí bảo lãnh lần đầu Bằng 30%~100% tổng tiền nhà(Phí bảo lãnh thấp nhất 20,000 yên~)
+ Phí bảo lãnh hằng năm(10,000 yên)hoặc phí bảo lãnh theo tháng(1,000yên~)
Nguồn cung cấp thông tin
Global Trust Networks Co.,Ltd.
Chi nhánh Shin-Okubo
〒 169 - 0072
Tầng 2 AKIYAMA BLD 1-15-15, Okubo, Shinjuku-ku, Tokyo
Member of THE TOKYO REAL ESTATE PUBLIC INTEREST INCORPORATED ASSOCIATION
Member of JAPAN PROPERTY MANAGEMENT ASSOCIATION
Group member of REAL ESTATE FAIR TRADE COUNCIL
(Cập nhật lần cuối: {date})
2026/01/26
Ngày cập nhật tiếp theo
2026/02/09
Thời hạn hợp đồng
-
0800-111-6663(Miễn phí)
Từ nước ngoài: +81-3-5155-4671









