(Cập nhật lần cuối: 2026年02月27日)
ID :1993744
※Vui lòng cho nhân viên biết số ID này khi được yêu cầu.
1R chung cư Tòa nhà cho thuê Tokyo Minato-kuプレール新橋 0402














































Giá thuê/chi phí ban đầu
110,000Yen
Phí quản lý
12,000 Yen
Tiền đặt cọc
0 Yen
Tiền lễ
0 Yen
Thông tin tài sản
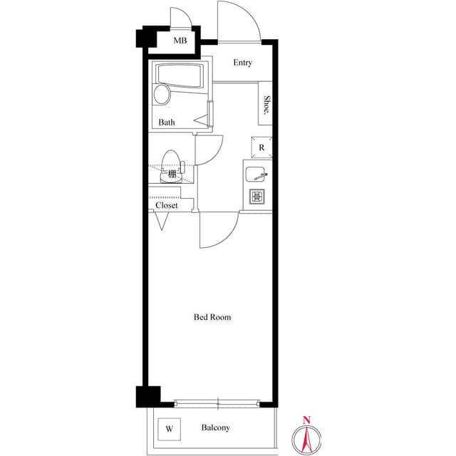
Không gian
1R
Diện tích
18.54㎡
Năm xây dựng
2001năm6Cho đến
Loại căn hộ
chung cư
Thông tin vị trí
Giao thông
Yamanote Line Shinbashi đi bộ 7phút
Toei Mita Line Uchisaiwaicho đi bộ 5phút
Địa chỉ
Tokyo Minato-ku 西新橋2丁目9-9
0800-111-6663(Miễn phí)
Từ nước ngoài: +81-3-5155-4671
Thông tin cụ thể
Tiền thuê
Phí quản lý
110,000 Yen
12,000 Yen
Tiền đặt cọc
Tiền lễ
0 Yen
0 Yen
Tiền bảo lãnh
Tiền cọc không hoàn lại
0 Yen
- Yen
Không gian
1R
Diện tích
18.54㎡
Năm xây dựng
2001năm6Cho đến
Tầng thứ
4Tầng thứ / 5Tầng
Hướng nhà
nam
Loại căn hộ
chung cư
Kết cấu
khác
Bảo hiểm nhà ở
Cần
Có thể chuyển vào luôn
2026-5-Đầu tháng
Điều kiện
Có thể 2 người ở/Gas thành phố/Phòng tắm và toilet riêng biệt/Có chỗ để máy giặt/Khóa tự động Auto lock/Ban công/Sàn ván gỗ/Thùng nhận chuyển phát/Có bãi đỗ xe đạp/Có bệt rửa tự động/Tủ chứa đồ
Bản ghi nhớ
-
Các khoản khác
-
Tham khảo
-
※ Trong trường hợp thông tin đã đăng và tình trạng thực tế khác nhau, chúng tôi sẽ ưu tiên tình trạng thực tế
vị trí
Địa chỉ
Tokyo Minato-ku 西新橋2丁目9-9
Giao thông
Yamanote Line Shinbashi đi bộ 7phút
Toei Mita Line Uchisaiwaicho đi bộ 5phút
Tham khảo
Công ty bảo lãnh
Bắt buộc tham gia(Công ty bảo lãnh:Công ty bảo lãnh Global Trust Networks)
Phí sử dụng công ty bảo lãnh:Phí bảo lãnh lần đầu Bằng 30%~100% tổng tiền nhà(Phí bảo lãnh thấp nhất 20,000 yên~)
+ Phí bảo lãnh hằng năm(10,000 yên)hoặc phí bảo lãnh theo tháng(1,000yên~)
Nguồn cung cấp thông tin
Global Trust Networks Co.,Ltd.
Chi nhánh Shin-Okubo
〒 169 - 0072
Tầng 2 AKIYAMA BLD 1-15-15, Okubo, Shinjuku-ku, Tokyo
Member of THE TOKYO REAL ESTATE PUBLIC INTEREST INCORPORATED ASSOCIATION
Member of JAPAN PROPERTY MANAGEMENT ASSOCIATION
Group member of REAL ESTATE FAIR TRADE COUNCIL
(Cập nhật lần cuối: {date})
2026/02/26
Ngày cập nhật tiếp theo
2026/03/05
Thời hạn hợp đồng
-
0800-111-6663(Miễn phí)
Từ nước ngoài: +81-3-5155-4671