(Cập nhật lần cuối: 2026年03月01日)
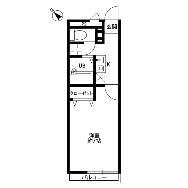
★バストイレ別・室内洗濯機置場・洋室約7帖・2階南西向き住戸j☆
ID :1999008
※Vui lòng cho nhân viên biết số ID này khi được yêu cầu.
1K tập thể Tòa nhà cho thuê Kanagawa Yokohamashi Konan-kuアムールSAIDO 202










































Giá thuê/chi phí ban đầu
55,000Yen
Phí quản lý
3,000 Yen
Tiền đặt cọc
- Yen
Tiền lễ
27,500 Yen
Thông tin tài sản
Không gian
1K
Diện tích
22.35㎡
Năm xây dựng
2006năm3Cho đến
Loại căn hộ
tập thể
Thông tin vị trí
Giao thông
Keikyu Line Kami-Ooka đi bộ 9phút
Yokohama Blue Line Kami-Ooka đi bộ 9phút
Yokohama Blue Line Konanchuo đi bộ 9phút
Địa chỉ
Kanagawa Yokohamashi Konan-ku 最戸2-16-18
0800-111-6663(Miễn phí)
Từ nước ngoài: +81-3-5155-4671
Thông tin cụ thể
Tiền thuê
Phí quản lý
55,000 Yen
3,000 Yen
Tiền đặt cọc
Tiền lễ
- Yen
27,500 Yen
Tiền bảo lãnh
Tiền cọc không hoàn lại
- Yen
- Yen
Không gian
1K
Diện tích
22.35㎡
Năm xây dựng
2006năm3Cho đến
Tầng thứ
1Tầng thứ / 2Tầng
Hướng nhà
tây nam
Loại căn hộ
tập thể
Kết cấu
nhà gỗ
Bảo hiểm nhà ở
Không cần
Có thể chuyển vào luôn
2026-3
Điều kiện
Gas bình/Phòng tắm và toilet riêng biệt/Chỗ để máy giặt(Trong nhà)/Ban công/Sàn ván gỗ/Thùng nhận chuyển phát/Có Internet(Cáp quang)/Chuông cửa màn hình/Có máy sấy khô trong phòng tắm/Có điều hòa
Bản ghi nhớ
-
Các khoản khác
-
Tham khảo
★上大岡駅徒歩約9分★初回定額ルームクリーニング代無し🌠
※ Trong trường hợp thông tin đã đăng và tình trạng thực tế khác nhau, chúng tôi sẽ ưu tiên tình trạng thực tế
vị trí
Địa chỉ
Kanagawa Yokohamashi Konan-ku 最戸2-16-18
Giao thông
Keikyu Line Kami-Ooka đi bộ 9phút
Yokohama Blue Line Kami-Ooka đi bộ 9phút
Yokohama Blue Line Konanchuo đi bộ 9phút
Tham khảo
Công ty bảo lãnh
Bắt buộc tham gia(Công ty bảo lãnh:Công ty bảo lãnh Global Trust Networks)
Phí sử dụng công ty bảo lãnh:Phí bảo lãnh lần đầu Bằng 30%~100% tổng tiền nhà(Phí bảo lãnh thấp nhất 20,000 yên~)
+ Phí bảo lãnh hằng năm(10,000 yên)hoặc phí bảo lãnh theo tháng(1,000yên~)
Nguồn cung cấp thông tin
Global Trust Networks Co.,Ltd.
Chi nhánh Shin-Okubo
〒 169 - 0072
Tầng 2 AKIYAMA BLD 1-15-15, Okubo, Shinjuku-ku, Tokyo
Member of THE TOKYO REAL ESTATE PUBLIC INTEREST INCORPORATED ASSOCIATION
Member of JAPAN PROPERTY MANAGEMENT ASSOCIATION
Group member of REAL ESTATE FAIR TRADE COUNCIL
(Cập nhật lần cuối: {date})
2026/02/27
Ngày cập nhật tiếp theo
2026/03/06
Thời hạn hợp đồng
-
0800-111-6663(Miễn phí)
Từ nước ngoài: +81-3-5155-4671


