(Cập nhật lần cuối: 2026年03月09日)
ID :2017571
※Vui lòng cho nhân viên biết số ID này khi được yêu cầu.
1K tập thể Tòa nhà cho thuê Hyogo AmagasakishiGrand Jete 立花 101








































Giá thuê/chi phí ban đầu
57,000Yen
Phí quản lý
4,000 Yen
Tiền đặt cọc
0 Yen
Tiền lễ
0 Yen
Thông tin tài sản
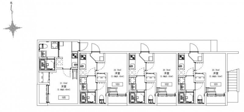
Không gian
1K
Diện tích
20.78㎡
Năm xây dựng
2016năm12Cho đến
Loại căn hộ
tập thể
Thông tin vị trí
Giao thông
Tokaido Line Tachibana đi bộ 5phút
Hanshin Main Line Amagasaki Center Pool Mae đi bộ 26phút
Địa chỉ
Hyogo Amagasakishi 七松町1丁目15-9
0800-111-6663(Miễn phí)
Từ nước ngoài: +81-3-5155-4671
Thông tin cụ thể
Tiền thuê
Phí quản lý
57,000 Yen
4,000 Yen
Tiền đặt cọc
Tiền lễ
0 Yen
0 Yen
Tiền bảo lãnh
Tiền cọc không hoàn lại
- Yen
- Yen
Không gian
1K
Diện tích
20.78㎡
Năm xây dựng
2016năm12Cho đến
Tầng thứ
1Tầng thứ / 2Tầng
Hướng nhà
nam
Loại căn hộ
tập thể
Kết cấu
nhà gỗ
Bảo hiểm nhà ở
Cần
Có thể chuyển vào luôn
2026-4-Giữa tháng
Điều kiện
Gas bình/Phòng tắm và toilet riêng biệt/Vòi hoa sen/Bếp 2 chỗ trở lên/Chức năng hâm nóng nước/Có gác xép/Chỗ để máy giặt(Trong nhà)/Ban công/Sàn ván gỗ/Có Internet(Cáp quang)/Phòng góc/Chuông cửa màn hình/Có bệt rửa tự động/Nhà thiết kế riêng/Có bồn rửa mặt riêng/Sử dụng Internet miễn phí/Tủ chứa đồ/Tủ để giày/Có điều hòa
Bản ghi nhớ
-
Các khoản khác
町内会費:220
入居者アプリ設定費:22000
ルムサポ:2700
Tham khảo
-
※ Trong trường hợp thông tin đã đăng và tình trạng thực tế khác nhau, chúng tôi sẽ ưu tiên tình trạng thực tế
Địa chỉ
Hyogo Amagasakishi 七松町1丁目15-9
Giao thông
Tokaido Line Tachibana đi bộ 5phút
Hanshin Main Line Amagasaki Center Pool Mae đi bộ 26phút
Tham khảo
Công ty bảo lãnh
Bắt buộc tham gia(Công ty bảo lãnh:Công ty bảo lãnh Global Trust Networks)
Phí sử dụng công ty bảo lãnh:Phí bảo lãnh lần đầu Bằng 30%~100% tổng tiền nhà(Phí bảo lãnh thấp nhất 20,000 yên~)
+ Phí bảo lãnh hằng năm(10,000 yên)hoặc phí bảo lãnh theo tháng(1,000yên~)
Nguồn cung cấp thông tin
Global Trust Networks Co.,Ltd.
Chi nhánh Shin-Okubo
〒 169 - 0072
Tầng 2 AKIYAMA BLD 1-15-15, Okubo, Shinjuku-ku, Tokyo
Member of THE TOKYO REAL ESTATE PUBLIC INTEREST INCORPORATED ASSOCIATION
Member of JAPAN PROPERTY MANAGEMENT ASSOCIATION
Group member of REAL ESTATE FAIR TRADE COUNCIL
(Cập nhật lần cuối: {date})
2026/03/09
Ngày cập nhật tiếp theo
2026/03/16
Thời hạn hợp đồng
-
0800-111-6663(Miễn phí)
Từ nước ngoài: +81-3-5155-4671

