(最后更新日期:2026年04月16日)
ID :1940509
※咨询时请告知工作人员此处您的ID号码。
1K 高级公寓 租赁物件 愛知県 名古屋市中川区CREST TAPP金山 904










































租金/初始成本
66,200日元
管理费
20,000 日元
押金
0 日元
礼金
0 日元
物件
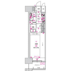
房间布局
1K
面积
29.97㎡
建筑年月日
2025年8月
建筑物类别
高级公寓
交通
交通
东海道本线 金山(愛知) 步行9分
名古屋市営名城线 金山(愛知) 步行9分
住所
愛知県 名古屋市中川区 愛知県名古屋市中川区八熊1丁目5-10
0800-111-6663(免费)
来自海外: +81-3-5155-4671
详细信息
房租
管理费
66,200 日元
20,000 日元
押金
礼金
0 日元
0 日元
保证金
押金(不退还)
0 日元
- 日元
房间布局
1K
面积
29.97㎡
建筑年月日
2025年8月
楼
9楼 / 15层楼的建筑
朝向
南
建筑物类别
高级公寓
构造
钢筋混凝土
房屋火灾保险
要
可入住时间
即入居可
详细条件
宠物可商谈/都市煤气/浴室、卫生间分开/双口以上炉灶/有洗衣机放置处/自动锁/电梯/阳台/智能自助快递柜/可视门铃/温水洗净座便器/浴室干燥机/防盗摄像头/免费使用网络/有空调
备考
-
其他费用
契約事務手数料(契約時):11000
更新事務手数料(更新時):11000
エアコンクリーニング(退去時):16500
其他
ペット飼育時、1匹につき敷金1ヶ月(小型犬・猫 合計2匹まで) ★キャンペーン★ 当月分日割り・翌月分の家賃+管理費無料!!(24H駆けつけサービスは対象外) 2026.3.7以降の申込分対象 契約者へAmazonギフト券20,000円進呈(諸条件あり) 2026.4.30までの契約開始に限りAD700!!(2026.4.1以降の新規申込分対象) 詳細は別途資料を確認下さい。 駐輪場・駐
※ 登载内容与现状不符的时候,以现状为准。
位置
住所
愛知県 名古屋市中川区 愛知県名古屋市中川区八熊1丁目5-10
交通
东海道本线 金山(愛知) 步行 9分
名古屋市営名城线 金山(愛知) 步行 9分
其他
保证公司
必须(保证公司名:株式会社全球信赖网)
保证公司费用:初期保证费 月房租的30%~100%(最低保证费20,000日元~)
+年度保证费(10,000日元)或月度保证费(1,000日元~)
信息提供者
Global Trust Networks Co.,Ltd.
新大久保分公司
〒169 - 0072
東京都新宿区大久保1-15-15 AKIYAMA BLD2楼
Member of THE TOKYO REAL ESTATE PUBLIC INTEREST INCORPORATED ASSOCIATION
Member of JAPAN PROPERTY MANAGEMENT ASSOCIATION
Group member of REAL ESTATE FAIR TRADE COUNCIL
最后更新日期
2026/04/15
下次更新日期
2026/04/22
合同期
-
0800-111-6663(免费)
来自海外: +81-3-5155-4671
