(最終更新日:2026年04月16日)
★2026年リーシングキャンペーン対象 3pt★ 内覧可能・2沿線利用可能!
ID :1958457
※お問い合わせ時にこちらのID番号をスタッフにお伝えお願い致します。
1K マンション 賃貸 愛知県 名古屋市中区ArtizA金山 0702










































賃料・初期費用
70,000円
管理費
7,000 円
敷金
- 円
礼金
- 円
物件情報
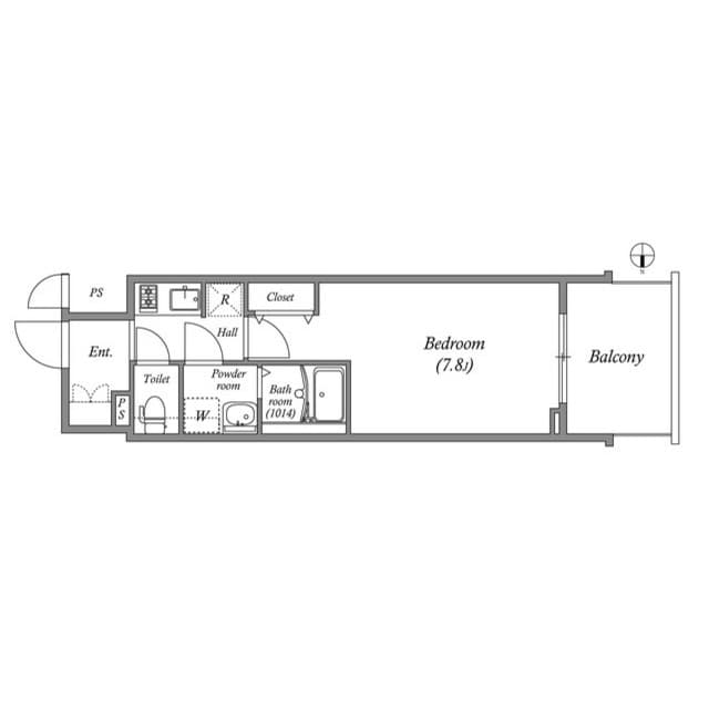
間取り
1K
面積
24.7㎡
築年
2026年2月
物件種別
マンション
アクセス
交通
名鉄名古屋本線 金山 徒歩7分
名古屋市営名城線 東別院 徒歩9分
住所
愛知県 名古屋市中区 金山3丁目12-7
0800-111-6663(無料)
海外から: +81-3-5155-4671
詳細情報
賃料
管理費
70,000 円
7,000 円
敷金
礼金
- 円
- 円
保証金
敷引金・償却金
- 円
- 円
間取り
1K
面積
24.7㎡
築年
2026年2月
階
7階 / 10階建
向き
西
物件種別
マンション
物件構造
鉄筋コンクリート造
住宅保険
要
入居可能日
即入居可
こだわり条件
2人入居可/都市ガス/風呂・トイレ別/シャワー有/コンロ2口以上/システムキッチン/洗髪洗面化粧台有/洗濯機置き場(室内)/オートロック/エレベータ有/バルコニー/フローリング/宅配ボックス/TVモニター付きインターホン/温水洗浄便座/独立洗面台/防犯カメラ/クローゼット・押入れ/シューズインクローゼット/エアコン有
追記事項
-
その他費用
-
備考
■解約予告2ヵ月前(日割■入居時鍵交換代は新築時不要 ■1年未満の解約は違約金として家賃+共益費の2ヶ月分要 ■賃貸でんきについては新築時は適用しないものとする。■駐輪場:上段11台は月額100円(税別)・下段18台は月額300円(税別)。■保証会社 エポス(KW-2)ニッポンインシュア(初回保証料、総賃料の50%、更新料10,000円1年毎JRAG
※ 掲載情報と現状が異なる場合は現状優先といたします。
所在地
住所
愛知県 名古屋市中区 金山3丁目12-7
交通
名鉄名古屋本線 金山 徒歩 7分
名古屋市営名城線 東別院 徒歩 9分
備考
保証会社
加入要(保証会社名:株式会社グローバルトラストネットワークス)
保証会社利用料:初回保証料
月額総賃料の30%〜100%(最低保証料 20,000円〜)
+ 年間保証料(10,000円)もしくは月間保証料(1,000円〜)
情報提供元
株式会社グローバルトラストネットワークス 新大久保支店
取引態様:媒介
〒169-0072 東京都新宿区大久保1-15-15 AKIYAMA BLD 2階
宅地建物取引業 国土交通大臣(2)第9148号
(公社)東京都宅地建物取引業協会 会員
(公財)日本賃貸住宅管理協会 会員
(公社)首都圏不動産公正取引協議会 団体会員
最終更新日
2026/04/10
次回更新日
2026/04/18
契約期間
-
0800-111-6663(無料)
海外から: +81-3-5155-4671





